感谢王媞对gooood的分享
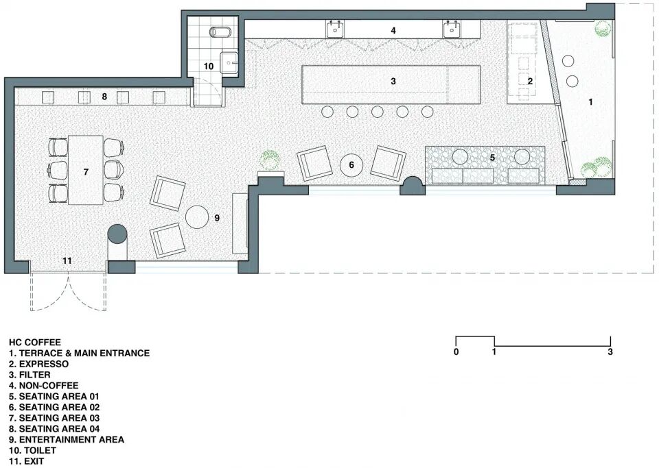
胡扯咖啡坐落于苏州老城区鹅颈湾。通过将最初位于购物中心的店铺,以外卖为主的经营模式,搬迁至沿街店铺;一边是热闹的街道,一边是富有年代感的居民楼,闹中取静,给大家更多空间和时间坐下来一起闲谈,一起感受生活。Rachel的设计初衷与业主不谋而合,舒适的室内环境结合趣味的游戏摆件,温馨、放松。
▼项目外观 © 李仁
设计方:王媞
联系邮箱:[email protected]
项目设计&完成年份:2020
项目地址:江苏省苏州市姑苏区鹅颈湾
建筑面积:80㎡
摄影版权:李仁
材料:真石漆、水泥砖、立邦漆、手工釉面砖
版权©www.gooood.cn,欢迎转发,禁止以gooood编辑版本进行任何形式转载


