©Shigeo Ogawa
为了最大限度地利用标准建筑面积,新总部大楼从老建筑的基址上旋转了90°,放宽了天际线比例,放宽了道路和相邻土地的对角线限制。为尽量减少外部体量,建筑向北侧道路后退8米,营造了一片开放空间,更新了该城区的城市景观。整个建筑外立面使用带有独特浅灰色条纹图案的白色花岗岩,营造出与建筑形成鲜明对比的观感。
自1959年建成以来,Kitano Construction位于长野的公司前总部建筑经历了Junzo Yoshimura设计的一系列扩建,以适应公司业务的扩张。但该大楼的部分建筑已经严重老化,迫切需要新的重建计划。
▲项目概览 ©Shigeo Ogawa
▲项目鸟瞰 ©Shigeo Ogawa
为了最大限度地利用标准建筑面积,新总部大楼从老建筑的基址上旋转了90°,放宽了天际线比例,放宽了道路和相邻土地的对角线限制。为尽量减少外部体量,建筑向北侧道路后退8米,营造了一片开放空间,更新了该城区的城市景观。整个建筑外立面使用带有独特浅灰色条纹图案的白色花岗岩,营造出与建筑形成鲜明对比的观感。
▲建筑外立面概览 ©Shigeo Ogawa
▲建筑外观人视角 ©Shigeo Ogawa
▲建筑后退营造的开放空间 ©Shigeo Ogawa
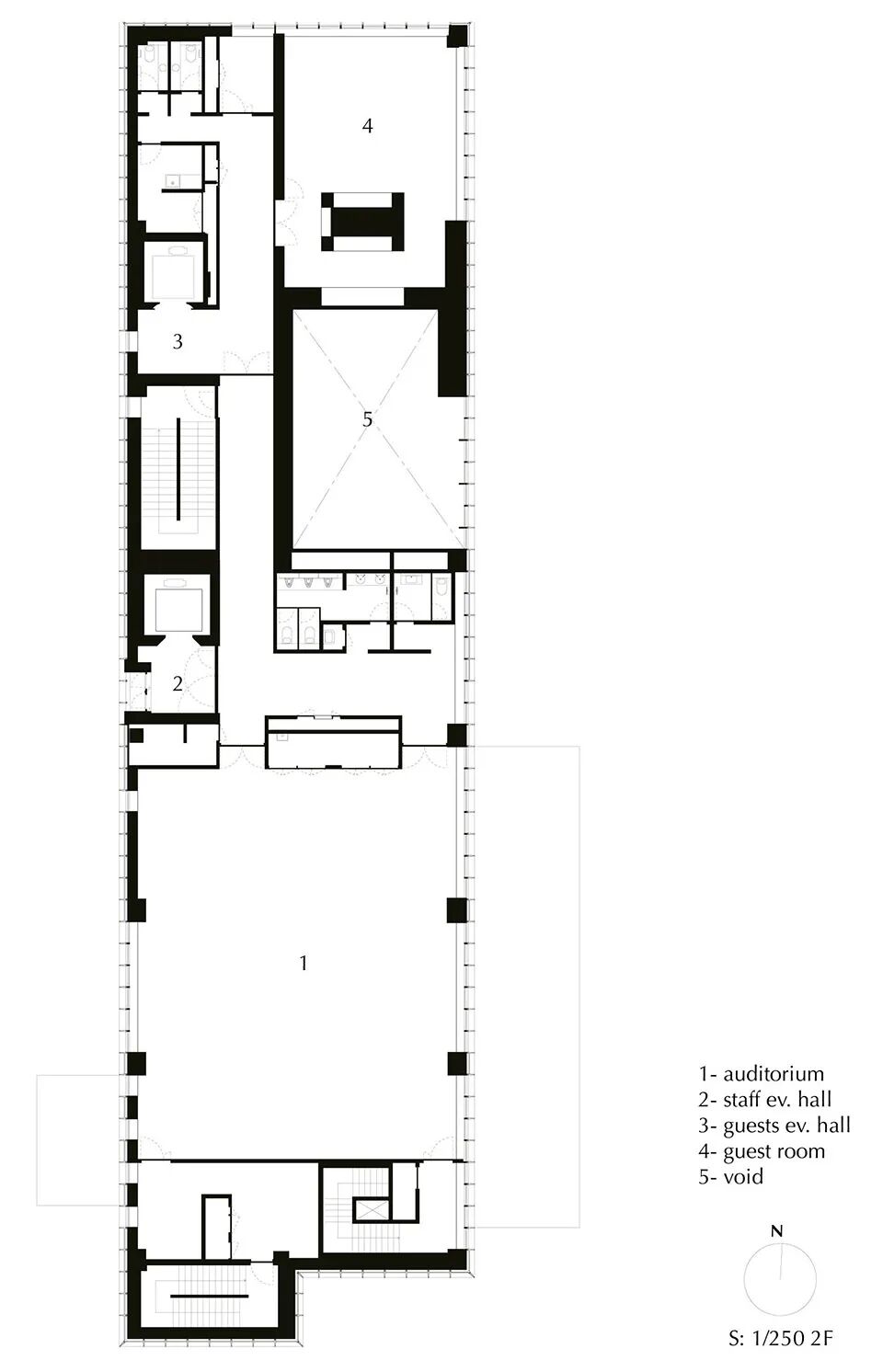
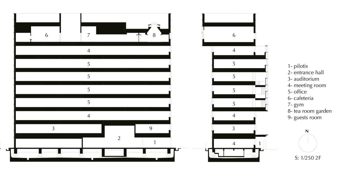
除了对周边社区的贡献之外,建筑物的隔震结构被用作发生灾难时的BCP(业务连续性计划)措施,这是另一个需要设计解决的问题。这种结构减轻了上部钢架的重量,创造了约13米的无柱空间。此外,还积极引入地热水辐射空调系统和太阳能电池板等利用自然能源的环保设施。
▲建筑外立面近景 ©Shigeo Ogawa
由Junzo Yoshimura设计的现有茶室“Kan-un-an”被搬迁至新总部大楼9楼。洗手盆和垫脚石被重新定位,露水道的黑色石膏墙,土地板和天花板照明的设计都是经过精心设计的,既符合法规要求,又不损害茶室的灵性。
▲茶室入口 ©Shigeo Ogawa
▲日式庭院概览 ©Shigeo Ogawa
▲日式庭院空间细部 ©Shigeo Ogawa
一些室内设计元素,如入口大厅和接待室,与丹麦Norm Architects合作完成。
▲入口大厅 ©Shigeo Ogawa
▲接待室 ©Shigeo Ogawa
项目图纸
Project Name: Kitano Construction Nagano Head Office
Office Name: Atsushi Kitagawara Architects
Firm Location: Tokyo, Japan
Completion Year: 2021
Gross Built Area: 7,001 m2
Project location: Nagano, Japan
Program: Office
Lead Architects: Atsushi Kitagawara
Design Team: Tomohiro Kitaguchi, Ryosuke Kuwabara, Yuki Nara, Takaya Hyogo
Photo Credits: Shigeo Ogawa
Interior Design (entrance, restaurant, reception room, etc.): Norm Architects


