最近宜宾的天气也真是任性!
一言不和就高温
一言不和就暴雨
猝不及防的就进入降温模式
所谓是:天变、地变、变化无常
我们希望:一生亲情不能变
2007年,一件真实的事情震颤着心灵
在一个海南旅行的旅游团里,发生一件很奇怪的事情,团队37人,但几天相处,每个游客数来数去都只有36人,问导游也三缄其口?
更奇异的是一个男子手上一直抱着一个黑色的箱子,从头到位没有说过一句话,很沉重的走在团队最后。最后一站——天涯海角,导游请大家聚拢,为大家解开了这个谜团。
这位男子打开黑色箱子,捧出了一个骨灰盒,哽咽着说...
他曾在母亲生前多次承诺过带她到全国各地旅游,但因为事业,一直抽不出时间,都想在等待,再等等...可母亲突然过世,这一切承诺,变成了一辈子锥心的悔恨!他回忆着当和母亲吁吁而语的每一刻,
“一切都来的太突然,觉得与其承诺以后,不如面对好当下
这一次,他放弃现在所拥有的事业,抱着母亲的骨灰,完成与母亲生前的约定,“希望母亲在天堂能够原谅我。”说到这,他泪如雨下。
.......
天可变、地可变、只有真情不会变,
与其承诺以后,不如做在现在!
现在开始,他们的身体健康比什么都重要
张学友说,想和他爸爸去海边吹吹风
因为,海边有........
高浓度负氧离子
(大气负氧离子分布图)
(负氧离子的功效)
高浓度负氧离子,能够增进张学友爸爸的身体健康!
现在你知道什么是负氧离子了吧?!新装房里如果有负氧离子,可以有效去除甲醛、苯、PM2.5等健康杀手,第二天搬家完全没问题!
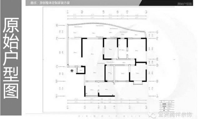
【当前的装修是下面这样】
装修房子,你可能在乎价格,省钱就行,如果省了钱,牺牲了年迈的父母和幼小的儿女的的健康,您将追悔莫及。
所谓的环保装修,就是施工材料或家具中的有害物质含量达到国家控制标准,但是这个解决不了根本问题,因为基材和家具中的甲醛,会形成叠加污染,甲醛的释放,最短5年,想想都觉得可怕,任何时候,健康比金钱更重要!
从父母的健康来分析,装修,可分为三种... ...
普通的装修,就是简单满足居住功能,将就能用,游击队是具备普通装修的能力,但里面有高浓度的甲醛、苯、、、、、
你喜欢的装修,就是风格效果和工艺水平都可以,一般正规的品牌家装公司只要认真些,也能达到这个境界
父母需要的装修,怎么理解呢?就是这个房子能够对全家健康具有促进作用。这个,就是腾祥献给业主父母最好的礼品——
高负氧离子养生家装系统
它是一种独具特色与健康功能的负氧离子产品,该产品全部采用天然植物草本、高密度负氧离子释放剂、天然植物溶剂等原料,经过高科技配方工艺技术加工,可以连续15年(太平洋保险承保)无源持续释放负氧离子,强力降解室内有害物质,整体改善室内空气质量,家人长期居住在这种环境下,免疫力能力年年递增,身体一年比一年好。有什么比健康更重要的?
腾祥装饰养生功能家装已经使养生步入了价格亲民化和家装功效化的成熟路线,让旧式王侯的富贵享受进入百姓人家,这无疑是对“传统家装”的一次改革和升华。
今年中秋不收礼,
收礼就要收健康!
这又是手慢无的节奏!!!
一直以来,腾祥人追求完美无瑕的建筑和装潢品质,对作品精雕细琢,为客户考虑周全,形成了最为代表性的优秀设计团队。
让装修,不再成为父母亲人的身体负担,我们能为您做到!
【国家一级资质·亿胜集团】
旗下宜宾腾祥装饰工程有限公司
ADD:宜宾市南岸正和装饰城6F
TEL:0831-5493333
家装
您对设计方案不挑剔
您对工艺细节不考究
您对家人健康不关爱
腾祥就不是您的选择


