很多人觉得地板无非就是颜色、纹理的差异
其实不然,通过不同的铺设方式
带来的视觉美感也大不相同
独具特色的铺贴效果
能让脚下的风景变得更加惊艳
下面跟着小林一起来看下
地板都有哪些铺贴方法
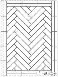
01
鱼骨铺贴法
顾名思义,拼出来像剔肉的鱼骨。鱼骨铺贴呈现的整体效果流动、复古,艺术感十足,需将一块完整的地板板材两边切出45度,在拼接时才能达到中缝对齐的效果,简直是强迫症患者的最爱!
魅力之大,连井柏然也为之倾倒了!品味太好了!(如上图)
自带文艺气质的“鱼骨拼”在众多拼法中独得专宠。作为地板界的颜值担当,丰富的纹理使空间充满了立体感,瞬间让你的房子腔调十足。
从铺贴工艺上来说,鱼骨形拼贴更为复杂;而在板材的耗损上来说,鱼骨形的耗损度较大,成本更高。
相对于下文的人字形铺贴来说,鱼骨形地板更适合地面较为完整的空间。
02
人字铺贴法
人字形地板视觉张力强,能为原本单调的地面增强立体感。
虽然和鱼骨铺贴很像,在工艺上却要简单的多,鱼骨铺贴,每块砖型是菱形,而人字铺法中的砖型就是普通的长条形,所以,论工艺要比鱼骨铺贴简单,不需要切边。
从造价上来说也要比鱼骨形地板低,是大多数欧洲传统家庭所喜爱的地板拼贴风格。常见的人字形拼贴有三种:直平人字形、单一人字形与双人字形。
单一人字形拼贴
直平人字形拼贴
双人字形拼贴
03
工字传统铺贴法
工字型地板拼贴方法是较为普遍的方式,施工难度系数小,铺装效果简单明了,有三分之一和二分之一两种铺装方法,不管哪一种都属于保险不出错的选择。
铺装效果简洁,对施工技术要求也不高,属于大多数家庭会选择的保守型铺装方法。
04
阶梯铺贴法
阶梯铺贴法,也称步步高拼法。它有点类似于工字型,但不光讲究排与排之间错位铺贴,还营造出一种像楼梯一样拾级而上的感觉,这种铺法在生活中也很常见。
与工字形的严谨对称不同,步步高铺贴法则更为随意,第一排的地板长度短于第二排,而第二排的地板起点则要比第一排稍长,以此类推。
与工字形地板一样,工艺上同样是简单耗材少的保险型铺贴法。
05
垂直叠加铺贴法
垂直叠加有两种,一种是垂直,一种是垂直偏移。
这种拼接方式属于基本款,是大众喜闻乐见的样式。整体线条清晰,层次分明,使得房间有落落大方之感。
06
田字形铺贴法
正方形地板,也称田字形地板。将三块同等大小拼成一块正方形,最后呈现出田字的效果。
可以根据自家情况选择田字的尺寸大小,如果想要多一点创意,不妨自己DIY刷个地板漆,立马就会有不一样的效果呈现。
07
混合拼贴法
混拼法的工艺更复杂,施工难度也更高,但艺术效果是最好的,国外比较常用。
地板和瓷砖施以不规则的方式进行拼接,呈现一种错落有致的美感,彰显主人高雅的生活情调。
采用开放式厨房的家庭,由于厨房和客厅没有门,可以采用地板和瓷砖拼接的方式,在视觉上分隔空间。
地板铺法各有千秋,如果你家铺地板,你会选择哪一种?欢迎留言给小遍哟~


