这篇文章,内行你就琢磨琢磨,
外行你就看个乐呵乐呵......
如何打造一个有温度的家?
我们来看一组实景拍摄
实景一
实景二
以上你所看到的,都是我们的原创作品,
我们是如何为客户打造一个有温度的家?
我们一起来看看过程......
配乐:朴孝信(雪之花)
我们先来看看视频文件中出现的两个空间
书房和茶室
注:此户型为一楼带地下一楼,地下一楼双天井,
采光充足,有自然光照射
为增大一楼的平台面积,进行了小的搭建,
增大一楼的平台面积,
也给地下一楼增加了一个书房空间。
1、书房
书柜轴侧图
书柜顶视图
书柜柜体下单图
书柜抽面、线条下单图
书柜安装完实景照片
书柜最总完成实景照片
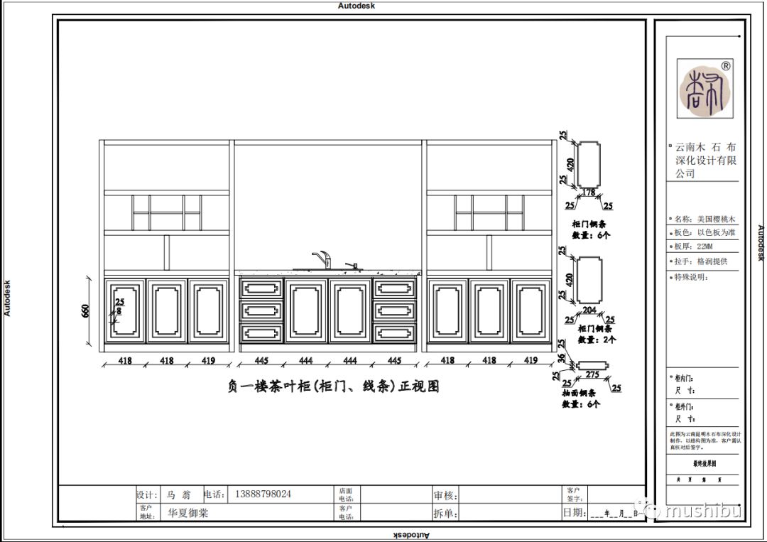
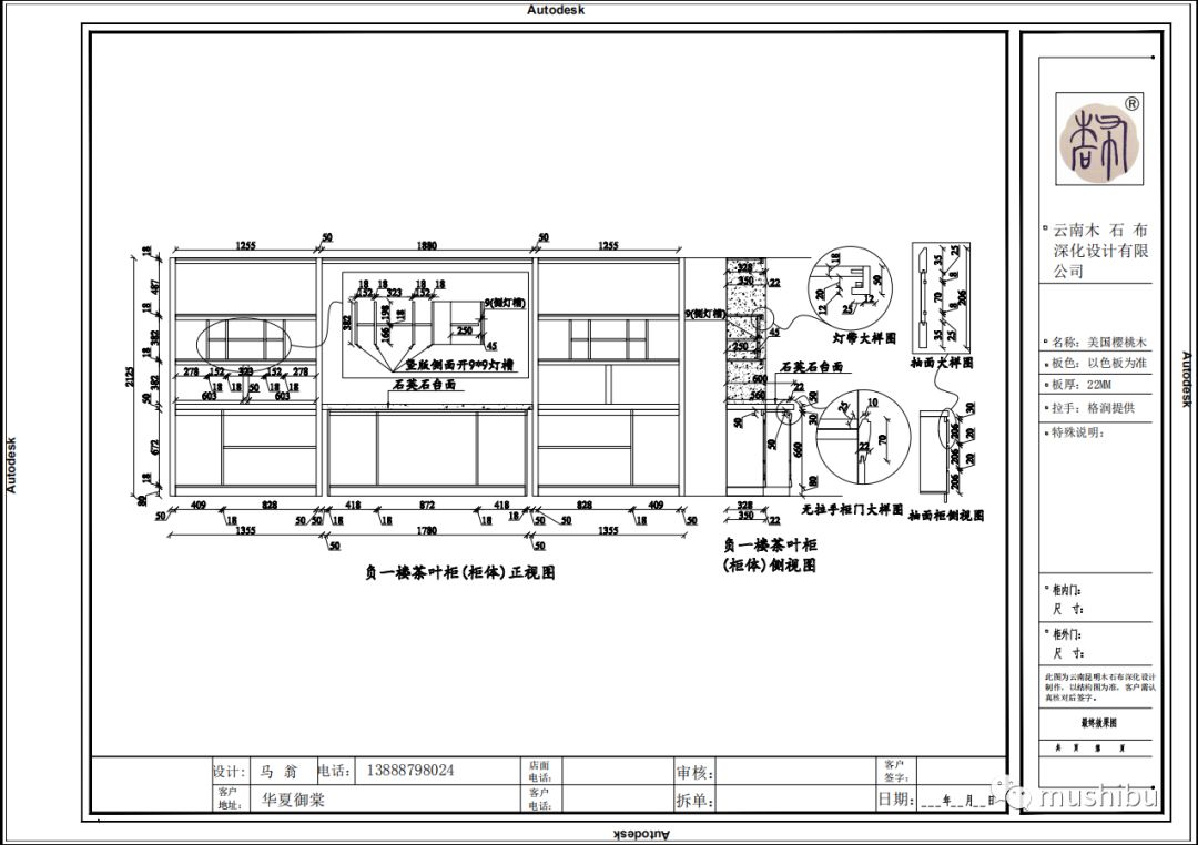
2、茶室
茶叶柜轴测图
茶叶柜顶视图
茶叶柜柜体下单图
茶叶柜柜门、线条、抽面下单图
茶叶柜安装结束照片
茶叶柜最终完成实景照片
3、琴房
琴房装饰柜轴侧图
琴房装饰柜柜门、线条下单图
琴房装饰柜安装结束照片
琴房装饰柜最终完成实景照片
4、老人房
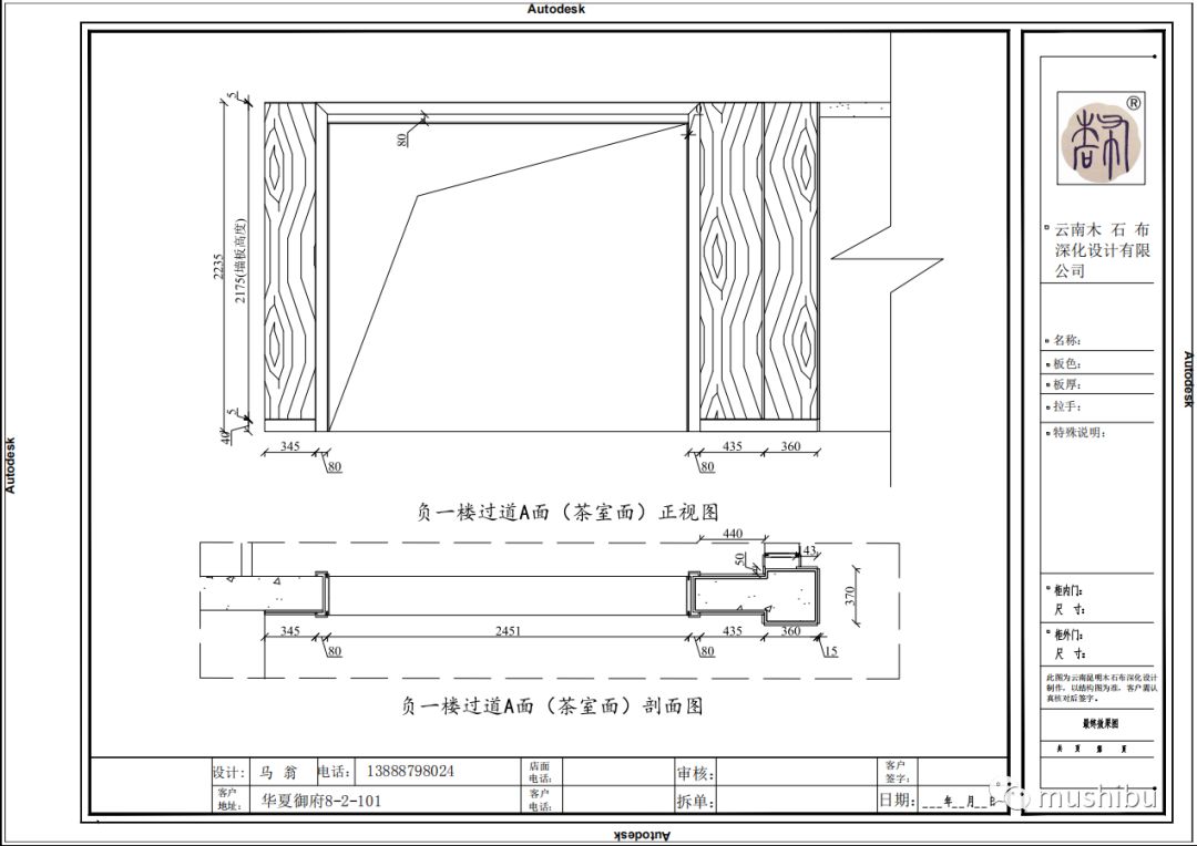
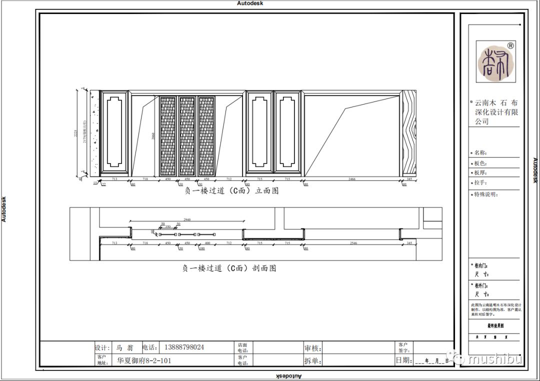
5、过道
6、公共区
7、厨房
橱柜平面图
立面图
橱柜实景照片
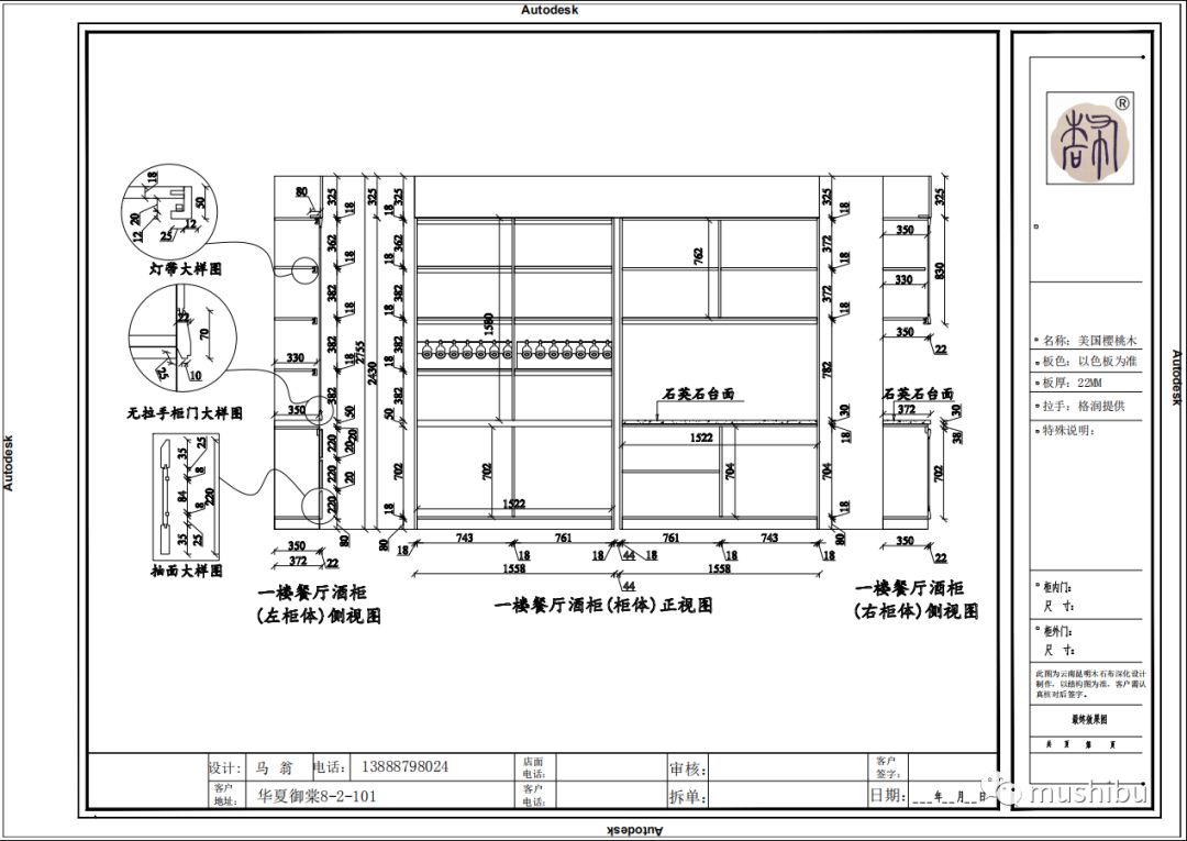
8、餐厅
餐厅墙面深化图
酒柜轴测图
酒柜柜体下单图
酒柜柜门下单图
餐厅安装结束实景照片
餐厅最终实景照片
9、客厅
客厅基层图
安装结束实景照片
最终实景照片
沙发背景深化图
沙发背景实景照片
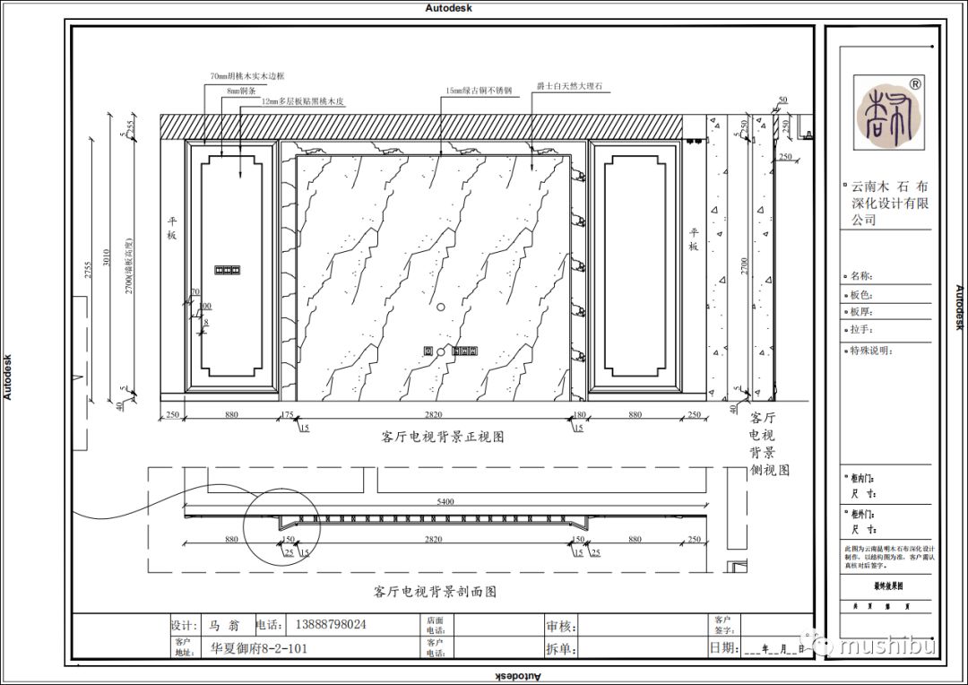
电视背景基层图
电视背景深化图
电视背景实景照片
基层图
实景照片
10、主卧室
主卧室基层图
主卧室床头背景深化图
主卧室电视背景深化图
安装结束照片
白天拍摄
晚上拍摄
主卧室电视背景
11、主卫生间浴室柜
最终实景照片
12、主卧室衣帽间
13、儿童房
14、储物间
15、套装门图纸
户外深化图纸
细节工艺
灯光应用
随拍
做一个走心的室内设计师,
做一个最专业木质整装设计师......
后记:本作品,用匠心致敬12年的从业,怀敬畏之心,感谢一路帮助过我的朋友们,感谢客户的信任和委托,你若信我,定不负你,用结果回报信任......


