他 是
/
陈少华
Chen
Shaohua
尚易装饰
X 陈少华
职位:首席设计师
经验:5年
理念:形式追随功能
公司:尚易华美居分公司
风格:现代简约风格,新中式风格,北欧风格,新古典风格等
案例:勤诚达二期,和平里二期,幸福海岸,领航城,坪洲新村,幸福港湾,山海上城等
案例一简介
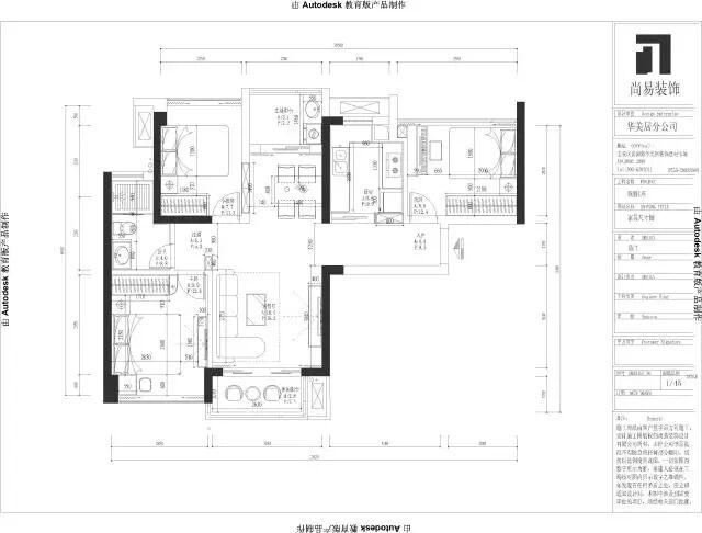
名称:领航城领丽
面积:89平方
风格:北欧风格
造价:基本工程8万元
结构:三居室
材料:乳胶漆,黑钛金,木饰面,抛釉砖
进度:基本完工
案例介绍
北欧风格设计貌似不经意的搭配之下,一切又如浑然天成般光彩夺目。任何一个空间,总有一个视觉中心,而这个中心的主导者就是色彩。北欧风格色彩搭配之所以令人印象深刻,是因为它总能获得令人视觉舒服的效果——不用纯色而多使用中性色进行柔和过渡,即使用黑白灰营造强烈效果,也总有稳定空间的元素打破它的视觉膨胀感,比如用素色家具或中性色软装来压制。
▲ 原始结构图
▲ 平面布置图
【效果图 】
案例二简介
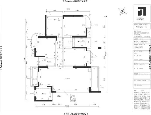
名称:勤城达二期
风格:新中式风格
结构:四居室
面积:134平方
造价:基本工程11万元
材料:抛釉砖,大理石,乳胶漆,黑钛金,木饰面等
进度:基本完工
案例二介绍
新中式风格 新中式风格是在后现代建筑基础上适用于现代居住理念的中国风格,是中国传统风格文化意义在当前时代背景下的演绎,是对中国当代文化充分理解基础上的当代设计。
新中式风格不是纯粹的元素堆砌,而是通过对传统文化的认识,将现代元素和传统元素结合在一起,以现代人的审美需求来打造富有传统韵味的事物,让传统艺术的脉络传承下去的具有中国特色的中国风格。
总之,就是将传统的元素赋予现代的设计中,让人既体会到现代设计的科技性,又体会到传统的中国韵味。
▲ 原始结构图
▲ 平面布置图
【效果图】
【完工图】
希望这篇文章能帮您更加深入的了解我们尚易的设计师,如果有业务联系或在装修方面有什么不懂的地方请不要吝啬您的手,点击关注留言给我们,小易会皆倾全力为您解答。
THE END
缘起设计 忠于工艺
尚易装饰
微信 : szshangyi
官网 : http://www.szsyzs.com/


