新朋友请点蓝字关注【宏舍装饰】 一站式家装领跑者
宏舍装饰每天为朋友分享装修家具案例,装修知识与经验,全心全意为朋友提供贴心的装修意见和建议,让朋友们在家装过程中省心,省时,省钱。
当下流行的现代北欧风格,
常常给人一种无比纯净的感觉。
它强调人与自然的和谐共生,
摒弃一切多余而繁复的装饰,
如天山雪莲之洁白,
如远离尘嚣之干净,
因而深受年轻人的欢迎。
选择简单、自然的北欧生活态度,
就等于选择了一种返璞归真的精神,
看似漫不经心的搭配,
实则处处流露主人对舒适生活的向往和追求。
就在多数人为如何设计自己的新家而纠结苦恼的时候,一位65岁的退休老太,早已把自己的家,装扮成了一众年轻人羡慕的模样!
和所有心怀美好的年轻姑娘一样,她也对未来生活充满无限憧憬。她喜欢一切美好且贵的东西,但拒绝过多物质的堆砌,让家保持通透明亮的感觉,买几样实用性强而具有美感的东西,就是她内心的所有诉求。
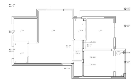
户型图
面积:107㎡
户型:三室两厅
原始结构图
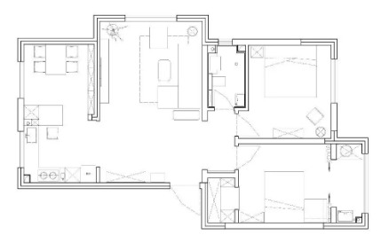
平面图
门厅
入户左侧有一个通体白色的玄关柜,用来收纳鞋子或其他日常物品,简单又实用,大大保证了门厅的整洁美观。
柜子上带有黄铜元素的各种摆设,瞬间将这个家的格调提升不少。浅色木地板的大面积铺设,让人在自然氛围中得到安乐与满足。
客厅
客厅通过白色与木色来提亮空间,搭配简约而别致的功能性家具,整体看上去淡雅、柔和,带来一种宁静的感觉。
几何图案的抱枕,随意摆放的毛毯以及富有艺术感的装饰画,共同打破了纯白沙发带来的单调,既活跃了空间色彩,又呈现出了北欧风特有的随意自然。
别具一格的电视背景墙,延续了整个舒适自然的空间格调;阳光从窗帘中透射进来,营造出一种温暖惬意的感觉。
餐厅
餐厅的布置简单而不失清新,三张风格不同的餐椅,为纯白色系的空间做了必要的过渡,防止空间过于冰冷和单调。
精巧的装饰与灰色桌布搭配在一起,让就餐环境显得更有情调。
餐桌后面有一个展示柜,为整个空间增添了些许亮点。实用性与艺术性的巧妙结合,能让人在用餐时心情愉悦,释放压力。
厨房
整体橱柜与纯白的整体空间融为一体,简约而有品位,红色冰箱采用了内嵌式设计,为视觉带来强大的冲击力。
白色的厨房,很容易营造出干净、整洁的氛围,U字型橱柜样式简洁,但可以让主人在烹饪时,有更广阔的活动空间。
小岛台前的木质座椅,兼具温润的触感与利落的线条,令人产生小憩片刻的欲望。
卧室
主卧风格清新质朴,营造一种零压力的自然感觉,很容易让身处其中的人心情平静下来。
谷仓门里面藏了一个嵌入式衣柜,足以满足业主强大的收纳需求,门一关上也不会影响卧室的视觉感,反而让这扇门成了一件不错的装饰。
窗台旁与床尾都摆放了绿色植物,清新自然,令人倍感舒畅。
次卧以优雅沉静的蓝色为主,简简单单的装饰,被浓浓的舒适感包围着。
取消床头柜设计,用被支架撑起的小盆绿植来装饰空间,别致而有特色。
床尾靠墙的一个角落也被充分利用起来,一张小边几,一把椅子,一盏台灯,一个抱枕,无需多么复杂的配置,也能围合成一个安静舒适的阅读区。
卫生间
具有文艺范儿的卫生间,完全就是梦想中家的样子。简约干净的灰与白,搭配清新自然的绿植,让空间气质更为出众。
镜面与采光设计,给卫生间带来通透明亮的质感。热爱生活的人,只要花上一点心思,就能为人提供流连忘返的空间。
如果你也想拥有这也风格的装修或者想了解房屋装修需要多少钱,可以拨打电话0371-56750777联系我们,让我们给您以贴心的服务。更多装修小知识,美图请继续关注宏舍装饰公众号,
长按二维码关注我们吧
不要错过
公司:郑州宏舍装饰
地址:新郑市龙湖镇双湖大道镇政府向西100米
网址:www.hnzzhszs.com


