© Kenya Chiba
作为大阪学院大学的新门户,建筑的外观犹如一艘轮船,引领着学生们在敏感时期共同探索未来。阳台的形状为建筑赋予了外观特征,并根据自身与不同环境之间的关系而发生变化。
大阪学院大学高等学校位于大阪府吹田市,是大阪学院大学的附属中学。该项目需要将学校迁移至于大学校园相邻的场地,以便进行大学与中学间的合作,同时也是为了解决旧校舍老化的问题和抗震重建的需要。在出生率下降和社会老龄化的背景下,新校舍通过与大学的合作,实现了合理的设施规模,并在重建的过程中引入了一个新的学科中心系统,旨在为下一代提供理想的教育环境。
新的教学楼由教室楼和食堂楼组成。作为大阪学院大学的新门户,建筑的外观犹如一艘轮船,引领着学生们在敏感时期共同探索未来。阳台的形状为建筑赋予了外观特征,并根据自身与不同环境之间的关系而发生变化,例如在学校和周围环境间形成缓冲带、控制太阳辐射以及引发学生间的交流等。呼应不同的阳台形状,挤压铝材外墙每时每刻都在随着光影的变化而改变外观,带给人一种精致而又丰富的感受。
教室大楼拥有非常清晰的内部结构,各学科的教室围绕着有机形状的生活核心区分布,并配备以大小不同的集会空间,包括FLS(灵活学习工作室)和丰富的户外空间,能够鼓励学生积极参与小组讨论和演讲等活动。各种类型的空间不论尺度大小,均是为了鼓励学生主动学习,在课间和课后充分交流。
项目图纸
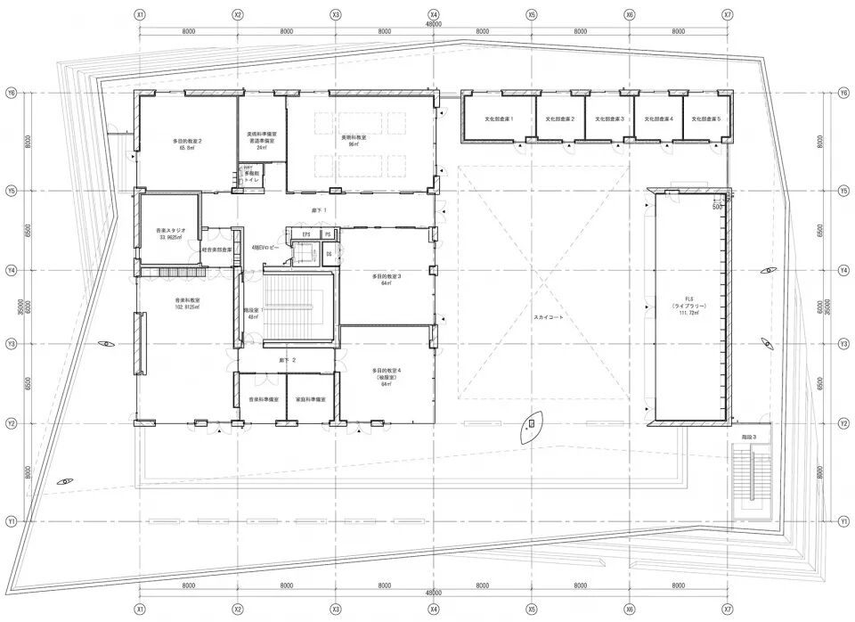
▲1层平面图© Atsushi Kitagawara Architects
▲2层平面图© Atsushi Kitagawara Architects
▲3层平面图© Atsushi Kitagawara Architects
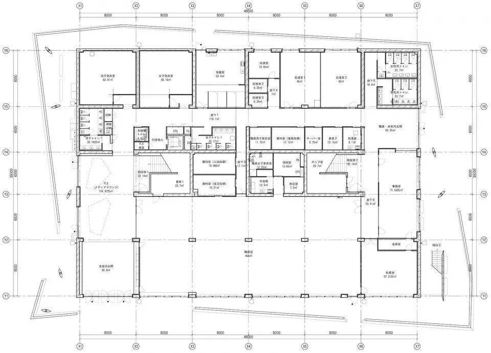
▲4层平面图© Atsushi Kitagawara Architects
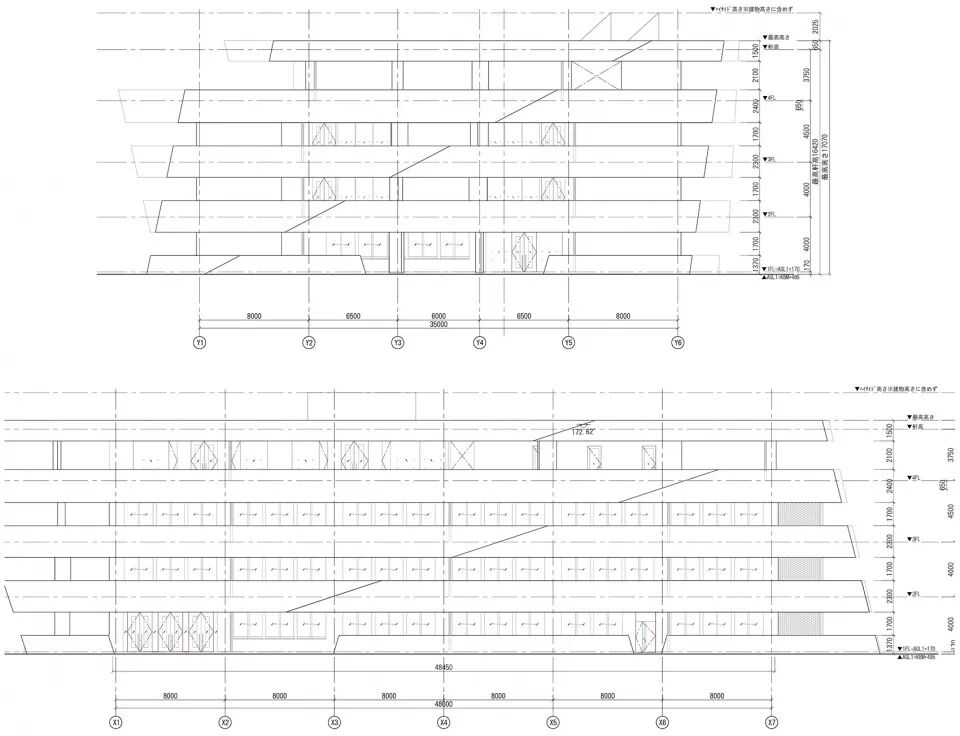
▲立面图© Atsushi Kitagawara Architects
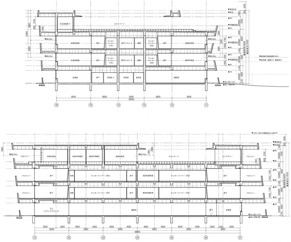
▲剖面图© Atsushi Kitagawara Architects
Project Name: Osaka Gakuin University Senior High School
Office Name: Atsushi Kitagawara Architects
Office Website: http://www.kitagawara.co.jp/
Contact email: [email protected]
Lead Architect: Atsushi Kitagawara
Design Team: Motomi Nishiuchi, Takeshi Uchida
Completion Year: 2020
Gross Built Area: 8315 m2
Project location: Osaka, Japan
Program: Education
Photo Credits: Kenya Chiba
版权©www.gooood.cn,欢迎转发,禁止以gooood编辑版本进行任何形式转载


