◆ ◆ ◆ ◆
绿地GIC 2-4108
This is the design
◆ ◆ ◆ ◆
工地专线(028)62128121
了解施工进度、预约参观时间
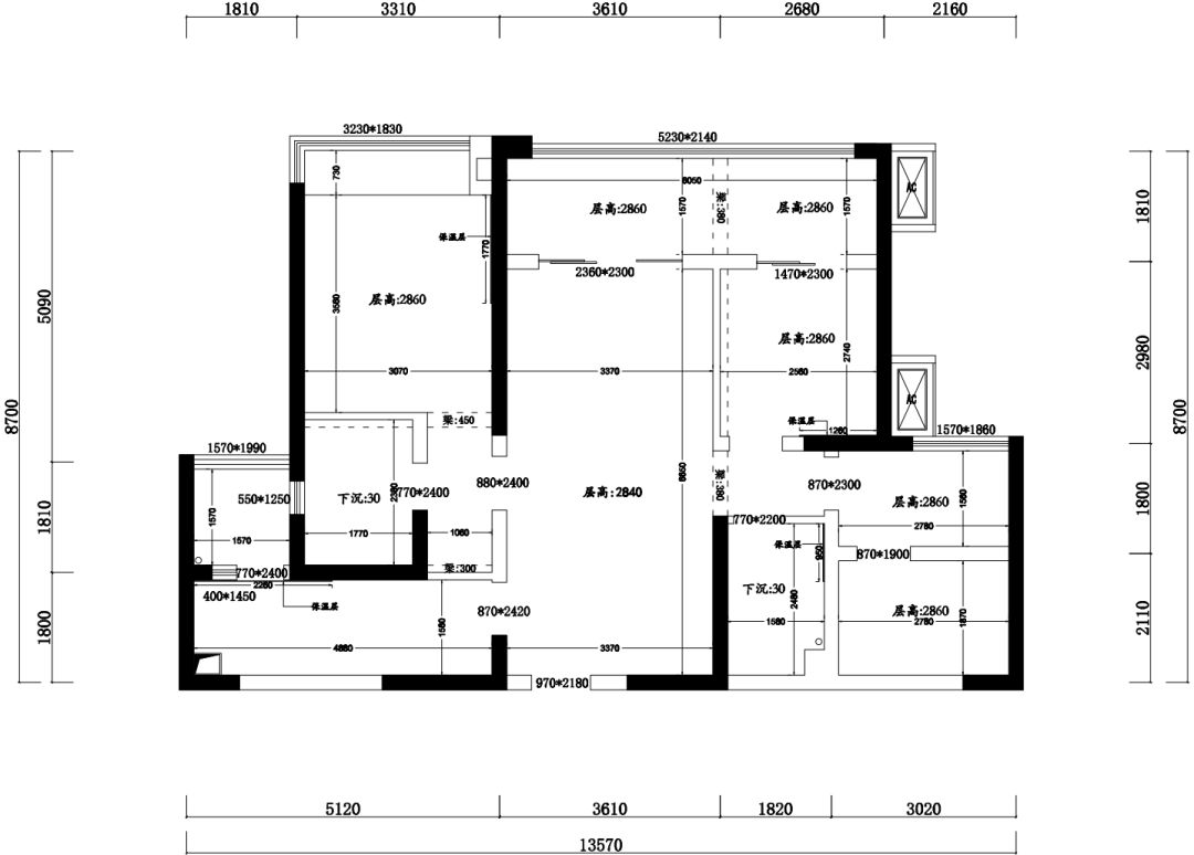
项目情况
户型:三室两厅一厨双卫
面积:84㎡(净面积)
风格:现代风格
设计师:杨雪
原始户型图
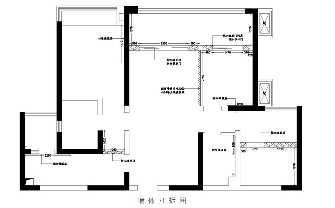
业主需求:
谈起对房屋的设想,两人希望生活环境简单舒适,同时满足老人、业主夫妇、孩子三方的使用需求。
设计师建议:
本户型整个是套三双卫的户型,前期考虑住的人比较少,主要是以舒适为主保留2个卧室,改一个书房,主卧有单独的储物空间,客厅采用落地窗增大采光。
平面布置图
开工
整体方案确定后,即刻筹备开工仪式,开工大吉!
<< 滑动查看下一张图片 >>
土建
现场砌墙已经基本到位,准备水电订位,开始做水电了。
<< 滑动查看下一张图片 >>
水电
水电布局工程、卫生间防水涂料涂刷工程已完成,木工漆工准备入场
<< 滑动查看下一张图片 >>
安装
吊顶工程、墙面工程完结,安装工程准备铺开。
<< 滑动查看下一张图片 >>
安装
地板、橱柜、衣柜安装工程完结,等待完工保洁后,即可完工。
<< 滑动查看下一张图片 >>
竣工
即将完工,敬请期待。
<< 滑动查看下一张图片 >>
拨打工地专线(028)62128121
了解施工进度、预约参观时间


