设计公司:Lenka Míková
位置:捷克
材料:木材 混凝土 玻璃 石材 砖
在忙碌的城市生活之中,人们渴望追寻一些传统而真诚的事物,这大概就是现今乡村房屋不断升温的原因。矛盾的是,对房屋过于精细的重建反而会使其丧失当地建筑的淳朴特性。如何在保留建筑原本氛围的同时提供现代舒适的生活环境,是这类改造项目共同需要解决的问题。而如果原本的房屋过于破旧,必须要全部重建呢?是否有必要重新造一栋和之前一模一样的建筑?新与旧的区分或许并没有那么重要,关键是最终整体的气氛如何。
建筑外观
在该项目中,建筑师遵循原本的建筑逻辑和传统建造技术,试图借此找到上述问题的答案。建筑师希望实现一种自然的氛围,而不是精准地模仿。因此,在设计初期手工材料的使用就成了项目的重要部分,木材、石材和泥土带给人以原始而又稚拙的感觉。
建筑位于广阔的草原之中,周边景色优美
<< 滑动查看下一张图片 >>
原本的宅地由一间小木屋和一个石头马厩组成,整体呈L形,自然舒展,与远方的牧场遥遥相望。为了保持这种平衡,建筑师决定尽量减少对建筑外观的改动,将改造主要集中在室内。每间房屋都设有一个直达屋顶的起居空间,可以突出展现二者的特点,如木屋中富有雕塑感的传统黑色厨房以及马厩门外优美的风景。此外,建筑师在两间房屋中分别增设了一个黑色“烟囱”,内设卫浴设施,其在马厩中占主导地位,而在木屋中则较为隐蔽。
两栋房屋呈L型
房屋材质不同
马厩和木屋有不同的特征和功能,建筑师在改造中充分体现了二者的差异性,这一思考贯穿了整个项目始终。业主的家庭居住在小木屋中,其内部更为传统。因为原本建筑条件太差,大部分空间都是重新建造的。粗糙的手工内饰使空间展现出了本地房屋昏暗、封闭而又亲密的特点。
木屋入口空间,木材、石材和砖透露出质朴的感觉,黑色墙面后为新增的卫浴空间
富有传统特色的厨房成为空间重点
餐厅和起居空间
二楼设有卧室和休息区,
黑色的卫浴空间延伸至此
二层休息区,厨房的烟囱穿过空间,
整体气氛封闭而温馨
二层卧室
浴室,墙面采用粗糙的石材
马厩为辅助用房,其中设有避暑客厅和客房,建筑师对其进行了较多介入,空间的整体氛围更为明亮开放。原本的石墙被混凝土墙面取代,其后藏有楼梯间和桑拿房。上方的室内墙面全部被涂成白色,以突显原本的木制屋架。主要的起居空间通过玻璃折叠门与室外露台相连,人们还可以通过一面巨大的固定窗欣赏草原上古老的树木。空间的核心是一个开放壁炉,由附近山中采到的巨大石块制成。
改造后的马厩外观
大面积开门打通室内和室外,尽享乡村风光
起居室
中部设有开放壁炉,透过通透的玻璃折叠门和石墙上的取景窗可以尽享乡村风光
混凝土墙面替代原本的石墙,内设楼梯和桑拿房
空间围绕新设的黑色卫浴核设置,白色墙面和天花突显木制屋架
明亮的浴室
整个建造过程花费了4年时间,尽管设计依然在进行之中,但基本的概念已经在空间中成型。建筑中许多元素和部件都是专门设计制作的,有些来自于民间智慧,有些则带有实验性质,在开明的业主和施工方的支持下,这些设计才得以真正呈现在人们面前。
如画一般的建筑
立面细节
<< 滑动查看下一张图片 >>
总平面图
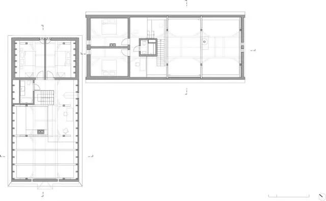
一层平面图
二层平面图
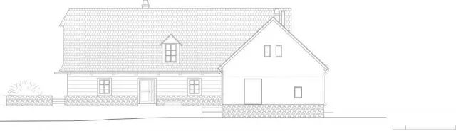
立面图
剖面图


