大连满铁社员消费组合本部,原址位于大连西公园町49号(今解放后42号日月大酒店附近)。始建于昭和4年(1929年)7月,同年11月竣工。整个建筑由满铁建筑课设计监督,施工方为大同组,电气部分为川北电气会社负责。总共费21万日元。总共7层,顶楼有可以散心的露天小广场。中央本部内除了各个楼层的购物区外,还设有休息室和餐厅。——摘选自新浪好友“去伪存真”的博文《《满洲建筑杂志》里的大连建筑(21)--大连满铁社员消费组合本部》。
(大连满铁社员消费组合本部旧影)
(大连满铁消费组合中央本部外观全景)
(正面玄关)
(一楼的休息室)
(二楼的休息室)
(二楼配给室)
(三楼事务室)
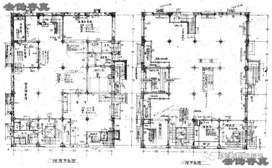
(地下、一楼平面图)
(二楼、三楼平面图)
(四楼、五楼平面图)
(六楼和楼顶的平面图。以上图片来自新浪“去伪存真”的博文《满洲建筑杂志》里的大连建筑(21)--大连满铁社员消费组合本部》。)
大连小平岛,小平岛位于大连市西南部海岸的旅顺南路发端处,是到旅顺旅游观光的必经之路,属大连市甘井子区。小平岛属半岛海景,三面临海,北面靠山,南向观海,由高低起伏的南山和北山环抱而成,在两个山角下,人工筑成了长317米和680米的防波堤,口宽220米,港湾水域面积不足1平方千米,水深5米~10米,清澈透底,长年不结冰。
解放以来,这里一直是大连城乡接合处的一个小渔村,这里的原住居民都是一些以打渔为生的纯朴的渔民,而这里也盛产大连最地道最味美的海鲜。自16世纪以来,小平岛就以海岸商机、海鲜美味、海岛旅游遐迩闻名。在它的半腰处有一堵30多米长的残垣断壁,面对大海,青石累累。据说,宋金时期为了抗击外来的海盗,驻守这里的将士们筑起了这堵城墙。现已被列为大连市重点保护文物。
(大连小平岛旧影)
大连表忠碑,原址位于大连朝日广场(今三八广场)中心。建造于1910-1911年,内供奉明治三十七八年(1904/1905)日俄战争海城以南日军四千战死病死者的骨灰。1925年左右,因城市扩展的原因,加上为了集中供奉,决定将表忠碑内供奉的日军骨灰迁至西公园(详见:大连旧影 100-大连西公园和忠灵塔)待建的忠灵塔内。1925年秋,西公园的忠灵塔开始建设,期间原表忠碑内日军的骨灰暂存于大连西本愿寺(详见:大连旧影 212-西本愿寺关东别院)内。1926年4月24日忠灵塔落成,4月25日举行忠灵塔揭幕仪式和安葬遗骨仪式。
(大连纳骨堂纳骨式,此图片来自新浪好友去伪存真的博客。)
(以上大连表忠碑的旧影来自新浪好友清流一叶的博客)
(此张大连表忠碑的图片来自新浪网友oldpostcard的博客)
(此张大连表忠碑的图片来自新浪网友大连飒飒的博客)
(大连表忠碑旧影)
大连子供馆,由日本人西村诚三经营,大正五年(1916年)建成,当时馆内有日本儿童200多名。具体位置未知。
(大连子供馆旧影)
大连满铁朝日寮,原址位于大连市三八广场西北侧五五路61号。建于1935年,地上3层,原是满铁的独身宿舍。1945年苏军占领大连后改做“中苏友谊医院”,抗美援朝时期是“东北军区旅大医管处第一医院”。1982年,医院正式定名“友谊医院”,人们习惯称之为三八医院。2012年12月拆除。
(大连满铁朝日寮旧影)
(拆除前的大连市友谊医院门诊部,此图片来自新浪网友大连之子恩爱的博客!)
大连春日小学校,旧址位于西公园町216番地(今劳动公园东侧解放路217号)。1920年4月1日设立,当时名为“大连第五寻常小学校”,校舍建筑面积8900平方米,和风近代建筑。1925年,改称“大连春日小学校”。1941年,改称“大连春日国民学校”。1946年,改称“大连日侨初等学校第七校”。1949年2月,改称“育才学校”。1951年,改称“大连市第四初中”。1956年秋,育才学校与大连市第四初中合并,校名使用“大连市第四初中”。1958年9月,改称“大连市第二十四中学”至今。
(大连第五寻常小学校旧影,最后一张图片来自新浪网友大连飒飒的博客。)
(大连春日小学校旧影,图片来自新浪好友清流一叶的博客!)
(图中左侧中间的建筑即为“大连春日小学校”,后面的礼堂正面的唐门还能清晰的看到。)
(网络图片,原大连春日小学校礼堂正门新影。)
(1987年夏,日本人神长文夫拍摄的大连春日小学校旧址。)
(网络图片,2000年以后拍摄的大连春日小学校旧址。)
(网络图片,大连第二十四中学鸟瞰效果图。)
大连静浦寻常小学校,旧址位于老虎滩景山町93番地(今解放路700号 )。1935年设立。解放后曾改做军工场,现为大连红十字会卫生救护培训基地。原学校的主楼已拆除新建,只剩下东侧的一栋老建筑还存在。
(大连静浦小学校旧影)
(大连静浦小学校旧址,图中右侧路灯后面浅粉色的多层建筑是原小学校遗留的老建筑,其旧影在本文第一幅老照片上右侧。)
大连甘井子小学校,旧址位于甘井子椒房屯275番地(今甘井子区甘海路4号)。日本殖民时期设立,当时学校包括高等科1个班,寻常科12个班(每个学年有两个班),属于小规模的学校。日本投降后,曾做过苏军的司令部。现为吉粮集团大连粮油运销总公司址。
(大连甘井子小学校旧影,图片来自新浪好友清流一叶的博客。)
(大连甘井子小学校旧址,今吉粮集团大连粮油运销总公司址。图片来自网易网友yanagi的博客。)
大连光明台小学校和大连高等商业学校,大连光明台小学校,原址位于光明台21番地(今胜利路80号210医院门诊新楼位置)。1933年设立。解放后曾作为解放军210医院使用。2010年左右拆除。
(大连光明台小学校旧影,图片来自新浪好友清流一叶的博客。)
大连高等商业学校,原址位于大连光明台小学校西侧今胜利路84号位置。1936年11月设立,为私立。1937年4月18日,举行第1届入学仪式,19日开始授课,当时借用早苗小学校(今大连教育学院,详见:大连旧影 237-大连早苗高等小学校)校舍使用,设置3年制本科和1年制别科。同年9月,大亚寮建成。1938年9月末,光明台校舍完成,遂迁至新校舍。1939年4月,开设新亚寮。7月,校歌发布。1940年3月,校友会成立。1941年4月2日,发布官立移管令,废止別科。5月5日,举行官立大连高等商业学校开学仪式。12月,第3届学生毕业。1942年9月,第4届学生毕业。1944年4月,改称大连经济专门学校,新设置了工业经营科,迁至早苗校舍,大亚、新亚、白波三寮合并为光明寮,新生实行全员寄宿制。
(大连高等商业学校旧影,最后一张图片来自新浪好友清流一叶的博客!)
(新浪好友旅顺口发布的大连高等商业学校旧影和拆除前的照片)
1945年9月,第7届学生办理毕业程序,校舍及光明寮被苏军接收。1946年5月25日,学校无法存续,发给在籍学生(第8、9届)在学证明后,废校。解放后成为步兵团住地,1964年以后成为解放军第210医院住院部和机关所在地。2010年8月拆除。
大连市立协和实业学校,原址位于今沙河口区三春街、抚顺街、长江路、连胜街相围区域。1932年,西岗商会副会长周子扬捐款倡办大连协和实业学校。1935年3月31日正式设立,为中国人男子中等专业学校,学制三年。同年4月1日,借用大连中学校(详见:大连旧影 256-大连中学校)的校舍开课,校训:协和、正直、奉仕、明朗。1936年7月1日,沙河口区抚顺街的新校舍竣工。当时有学生329名。1940年,开设夜间专修科,学制一年。同年有本科班12个,学生599人,专修班学生140人,教职员20人。1943年,改称大连协和实业公学校,学制四年。解放后为部队驻地,后改为解放军第403医院,2009年老校舍建筑被拆除。
(大连协和实业学校旧影)
(《大连协和实业学校--昭和十七年毕业纪念册》,图片来自新浪网友刘文刀的博客,原文地址:http://blog.sina.com.cn/s/blog_48e74b490100m74f.html#commonComment)
(拆除前的大连市立协和实业学校旧址,图片由网友旅顺口发布。)
大连第三中学校,旧址位于香月台85番地(今中山区解放路667号院内)。昭和13年(1938年)4月15日开校,官立五年制日本人中学。1940年有班级12个,学生571人,教职员22人。1945年苏军进入大连后,这里曾经是苏军的炮兵团住地。1949年11月,解放军海军第一所正规学校——海军大连舰艇学院在这里组建成立。据说原校舍现为宿舍。
(大连第三中学校旧影,第一张图片来自新浪好友清流一叶的博客!)
(大连第三中学校旧址,图片来自网易网友yanagi的博客!)
大连上葭国民学校,原址位于上葭町71番地(今沙河口区连胜街与新华街交汇处北建兴花园小区位置)。1941年设立。解放后曾为大连航海学校,1997年左右拆除。
(大连上葭国民学校旧影,图片来自新浪好友清流一叶的博客。)
大连关东军陆军仓库和宪兵分队,旧址位于今中山区致富街与兴和街交汇南侧。原地块附近早期为大连东公园区域,1920年左右建成关东军陆军仓库和宪兵分队。其中关东军陆军仓库旧址尚存,建筑面积1990平方米,和风现代建筑。解放后由中国人民解放军接管,现为解放军总后勤部大连解放军财务结算中心办公楼。
(大连东公园,此图来自新浪好友清流一叶的博客。)
(大連陸軍関東倉庫 全景)
(満州大連陸軍関東倉庫 営門)
(大連陸軍関東倉庫 兵舎)
(大連陸軍関東倉庫 兵舎 内部)
(大連陸軍関東倉庫 別館)
(大連憲兵分隊ト関東陸軍倉庫)
(大连关东军陆军仓库旧址。文保牌上写着“日本大连宪兵队本部旧址”,不解!!到底谁弄错了?)
(日军步兵第三十九联队在大连关东军陆军仓库)
(大连关东仓库宿泊所)
(大连关东仓库将校官舍)
(大连明泽街与鲁迅路交汇处的关东仓库将校官舍旧址)
大连芙蓉高等女学校,旧址位于蔦町40番地(今沙河口区五四路与玉华街交汇处西)。昭和16年(1941年)4月1日设立,为官立。解放后曾是旅大警备区司令部所在地,现在依旧为部队使用。
(大连芙蓉高等女学校旧影,第一张图片来自新浪好友清流一叶的博客!)
(大连芙蓉高等女学校旧址)
大连工业学校,原址位于西山屯488番地(今黄河路850号)。昭和10年(1935年)3月29日设立,为官立。1951年8月,为旅大师范专科学校。1953年,更名为大连师范专科学校。1958年7月,扩建为大连师范学院。1960年更名为辽宁师范学院。1983年12月,更名为辽宁师范大学至今。原校舍已拆。
(大连工业学校旧影,第一张来自新浪好友清流一叶的博客。)
(大连工业学校内部旧影)
(上个时期八九十年代拍摄的大连工业学校旧址)
大连羽衣高等女学校,旧址位于伏见町8番地(今西岗区中山路159号,中山路与欢胜街交汇处东北角)。 昭和2年(1927年)5月25日设立,占地10580平方米,是一所私立的四年制日本女子中学,后改为市立。由当时在“关东州”教育界颇有影响的冈内半藏和来村琢磨二人和议创办的。初名大连羽衣女学院,附设于大连语学校(详见:大连旧影 218-大连女子商业学校和大连语学校)内。1930年4月,改名为大连羽衣高等女学校。1940年有班级18个,学生1067人,教职员35人。现为大连理工大学化工学院北院。
(大连羽衣高等女学校旧影,最后一张图片来自新浪好友清流一叶的博客。)
(大连羽衣高等女学校旧址)
大连昭和高等女学校,旧址位于桔梗町121番地(今西岗区胜利路75号,长春路与胜利路交汇处西侧)。昭和12年(1937年)4月1日设立,为私立四年制日本人中学。1940年有班级16个,学生840人,教职员23人。现为大连市西岗区水仙小学。
(大连昭和高等女学校校徽、校歌、校舍,图片来自新浪好友清流一叶的博客。)
(一张位于大连昭和高等女学校西南方面拍摄的旧影,图片来自新浪好友大连飒飒的博客。)
(大连昭和高等女学校师生迎接“御真影”(溥仪的御照)的情况,照片中右面是御真影奉安车,有人双手捧着御照进入学校。此图来自网易网友yanagi的博客。)
(大连昭和高等女学校旧址)
大连实业学校,原址位于柳町98番地(今南山路与南山街交汇处东北角地块)。大正9(1920年)年3月设立,初为市立大连商工学校,后改称大连实业学校。解放后曾是大连外国语学院学生宿舍、海军军政学校所在地。原建筑已拆,现地块为大连外院留学服务中心和居民小区。
(大连实业学校校徽、校歌、校舍,图片来自新浪好友清流一叶的博客。)
大连中华三一学校,原址位于今中山区文林街1号位置。1923年初由爱国知识分子石三一女士创办,该校是中共地下党组织宣传革命思想的阵地之一。学校设日校(小学)1个班,夜校1个班。夜校招收对象主要是印刷工人,课程设汉文、英语两科,汉文课本是《工人丛书》,由石三一亲自授课,中国共产党早期领导人之一关向应就曾是该校学员。全国劳动组合书记部干事李震瀛以英语教员身份为掩护,在此进行马克思主义宣传活动。1924年石三一女士离开大连后,改名为启华学校,后成为大连中华青年会(详见:大连旧影 035-大连中华青年会)的一所分校。
(大连中华三一学校师生合影,1924年共产党人李震瀛(后排左二)曾在此任教。)
大连向阳小学校,原址位于大连向阳台54番地(今中山区宪立巷60号附近)。1938年设立。解放后曾改为大连市立岭前区中心小学、大连师范学校。原建筑已拆除,现为向阳小学址。
(大连向阳小学校校徽、校歌、校舍,图片来自新浪好友清流一叶的博客)
(大连向阳小学校旧影)
大连日出小学校,原址位于日出町2番地(今中山区七星街七星小区141栋和143栋所在地)。1937年设立。解放后曾为解放军海军军政学校。拆除时间不详。
(大连日出小学校校徽、校歌、校舍,图片来自新浪好友清流一叶的博客。)
大连周水子寻常小学校,原址位于今甘井子区高云路168号。始创于1916年,1958年更名为周水子小学。原校舍建筑已拆。
(大连周水子寻常小学校旧影,第一张图片来自新浪好友清流一叶的博客。)
大连甘井子海员俱乐部,原址位于今甘井子工兴路南中山化工公司东侧。建于昭和6年(1931年)。设计者是日本著名设计师相贺兼介。地上两层、地下一层,砖混结构。
(大连甘井子海员俱乐部旧影)
(大连甘井子码头(详见:大连旧影 488-满铁甘井子煤炭码头)示意图,图中间铁路南侧能看到标注“甘井子海员俱乐部”的位置。)
满铁沙河口铁道工场,旧址位于大连霞町94番地(今沙河口区兴工街),是日本殖民统治时期的铁路机车车辆制造和修理工厂,现为铁道部大连机车车辆厂。工厂始建于1899年,前身为沙俄所建的东清铁道机车制造所(详见:大连旧影 434-东清铁道机车制造所)。1905年沙俄在日俄战争中战败,1907年4月1日,工厂由日军野战铁道提理部正式接管,改称大连工场。后由南满洲铁道株式会社正式接管工厂。1908年8月7日,满铁决定把大连工场由原址迁移至大连郊外北沙河口(今机车厂址)重建。1911年8月9日竣工并开工生产,同时改称“满铁沙河口铁道工场”。
(满铁沙河口铁道工场全景)
(满铁沙河口铁道工场事务所,最后一张图片来自新浪网友oldpostcard的博客!)
其一年生产所需材料为:钢材449万公斤,松木8800立方米,杨木1314立方米。大连铁道工场成为日本在中国东北进行军事扩张、经济掠夺的一个重要产业。1923年,其从业人员为3201人,其中1740人为日本人,负技术和管理之责。1933年生产的“亚细亚”号(此处略过,以后将有专题介绍)特快列车曾是满铁的骄傲。
(满铁沙河口铁道工场厂区内,最后一张图片来自新浪网友oldpostcard的博客!)
(明治四十一年时的滨町大连工场和大正五年时的沙河口铁道工场)
(满铁沙河口铁道工场车间内)
(大正四年(1915年)三月十三日,日本探险家菅野力夫在满铁沙河口工场。)
1945年8月15日日本投降,9月苏军进驻沙河口铁道工场,易名为中长铁路大连铁路工厂。1950年工厂由中苏双方共同管理。1953年1月起工厂由我国独立经营,隶属铁道部领导,定名为铁道部大连机车车辆工厂。2000年9月,五大公司与铁道部脱钩,工厂隶属北车集团公司。
现遗存的机车车间,是内燃机车生产的总组装车间,前身是沙俄侵占时建立的机车组装职场,后改名为组立职场。车间建筑为1908年建,后对建筑外立面进行改造,原为红砖建筑。内有两门吊,分别是1919年、1925年安装的150吨、100吨,系美国生产。
满铁中央试验所沙河口研究所,旧址位于沙河口区中长街49号,是中国第一家铁路机车车辆的研究所。1922年3月17日,根据时任负责技术的满铁理事、工学博士岛安次郎的提议,将满铁沙河口工场(今大连机车车辆有限公司)的材料试验室独立分离出来,成立技术研究所,隶属于南满洲铁道株式会社铁道总局,专门承担满铁的铁路机械设备的研制、试验,首任所长武村清,起初只有十几名研究人员。由于研究所同样位于沙河口、毗邻沙河口工场,因此又称沙河口技术研究所。
(大连满铁中央试验所沙河口研究所旧影)
1930年6月,由于南满洲铁道株式会社实行职制改革,技术研究所更名为理学试验所,并划归新设立的计划部。仅一年之后,计划部于1931年8月被撤销并改为技术局,将理学试验所、中央试验所和地质调查所均归到技术局下。为了统一物理、化学的研究体制,同年12月理学试验所被并入中央试验所(详见:大连旧影 168-满铁中央试验所),成为中央试验所沙河口研究所,先由满铁技术局管理,后直属满铁总裁。1937年3月,沙河口研究所从满铁中央试验所分离出来,与满洲国铁道总局辖下、位于奉天的“铁道研究所”合并,称为铁道研究所大连分所。大连分所虽然名为“分所”,但实际上规模比奉天“本所”更大。
1939年4月,铁道研究所作为铁道技术的专门研究机构,从满洲国铁道总局独立分离出来,研究所奉天本所的业务移交新设的铁道总局调查局,而大连分所更名为铁道技术研究所,再次成为满铁的直属研究机构,人员总数多达500余人。中国抗日战争期间,由于许多研究所成员被招募从军,研究活动日渐减少。
1945年8月日本投降,铁道技术研究所的满铁时期正式结束。8月22日苏军进驻大连,各家原满铁机构随即被苏军接管,铁道技术研究所从属于沙河口工场,一并由苏军军管。同年9月,中苏联营的中国长春铁路公司理事会在长春成立,随后接管了沙河口铁道技术研究所。1951年,中国长春铁路公司理事会将沙河口铁道技术研究所移交中华人民共和国中央人民政府铁道部;同年6月正式成立铁道部大连铁道研究所。1952年8月1日,更名为铁道部铁道研究所大连分所。1957年,成立铁道部大连机车车辆研究所。1959年,更名为大连热力机车研究所。1978年,更名为铁道部大连内燃机车研究所。
(满铁中央试验所沙河口研究所旧址)
2000年10月,根据国家科技部的要求,大连所由事业型科研单位改制为科研型企业单位。同年,随着国企主辅分离、辅业改制的浪潮,中国铁路机车车辆工业总公司重组为中国北方机车车辆工业集团公司和中国南方机车车辆工业集团公司,大连所作为重要组成部分划归为中国北车集团,更名为中国北车集团大连机车研究所。2007年,大连所整体改制为有限责任公司,更名为中国北车集团大连机车研究所有限公司。
注:本文介绍内容摘选自维基百科-中国北车集团大连机车研究所。
大连沙河口电话局,原址位于今沙河口区五四广场南成仁街2号。建筑为地上二层,地下一层,砖木结构,建于日伪时期。今已拆除,现为中国邮政储蓄银行五四广场邮政支局址。
(大连沙河口电话局旧影)
(1992年,日本人拍摄的大连沙河口电话局旧址。)
(原大连沙河口电话局所在位置)
大连水道沙河口净水工场,又称泉町净水厂,旧址位于今沙河口区五一路95号(五一路与盖州路交汇处西侧)。建于1909年,主要为当时的满铁沙河口铁道工场和附近的职工住宅区域提供用水。水厂水源主要来自马兰河,将马兰河水提升至河岸北侧海拔80米以上高地的配水池中,利用高度落差向东自流至过滤系统中,过滤后的水经泵房送至各用水处。
(大连水道沙河口净水工场)
(沙河口水道滤过池(近处)及满铁沙河口工场(远处))
(沙河口附属地水道铁管布设平面图)
(沙河口水道唧筒所附近平面图)
(沙河口水道滤过池其他配置图)
(沙河口水道净水所平面图)
(网友“大连飒飒”拍摄的沙河口净水厂内建于1917年的“急速滤过室”(图右)和“供水泵站”(图左))
(大连水道沙河口净水工场旧址,今为改造后的大连市自来水集团有限公司沙河口净水分公司。)
大连水道沙河口净水工场在日本殖民统治时期每天供水1.5万吨,后来进行改造,达到了每天3万吨。解放后经过深入处理,更换滤池,每天供水达到7万吨,其净水系统一直用到2001年拆迁改造。现为大连市自来水集团有限公司沙河口净水分公司。厂区内只保留下来建于1917年的“急速滤过室”和“供水泵站”两栋建筑。“急速滤过室”为地上两层,地下一层,地下一层有管廊和水泵2台,一层为过滤室,其他房间原为化验室、调度室、资料室、值班室,二层为放映室等;“供水泵站”内部设施除一台五吨吊车,其他设备全无。2003年时,随着现代化的净水车间建起,这两座老建筑才结束了生产历史。
大连沙河口火车站,旧址位于沙河口区中长街1号。建于1909年,是长大线中间站,为大连地区具有特色的三等站站房之一。俄罗斯建筑风格,建筑面积350平方米。日本殖民统治时期为沙河口驿,苏军接管后改称为沙河口站,现在是大连铁路分局沙河口站,2014年12月10日停办客运业务。
(大连沙河口火车站旧影)
(1994年日本人拍摄的大连沙河口火车站)
(2014年12月9日拍摄的大连沙河口火车站,图片来自百度搜索。)
大连沙河口苗圃
(大连沙河口苗圃)
大连沙河口栗屋农园
(大连沙河口栗屋农园の白菜)
大连沙河口公教和教会学校
(1931年,教会学校课间休息)
(1933年,教会庭院大扫除)
(1935年10月20日,大连沙河口公教举行教友全体避静典礼留影纪念)
(1936年,墓前十字架)
(1937年,俄罗斯学校的学生)
(1938年2月11日,大连沙河口公教信友送别雷修女士留影纪念)
(1938年4月17日,大连沙河口公教信友送别包大司铎留影纪念)
(1939年,教会学校的中外学生)
(教会学校外观望的人群)
(教会学校种菜)
注:以上部分图片来自图片中国及中国记忆论坛,注解仅供参考!!
大连沙河口金融组合
(大连沙河口金融组合)
满铁沙河口铁道工场社宅,旧址位于大连市沙河口区兴工北七街,该建筑群始建于1915年,现兴工北七街上保留的6栋日式建筑多用于住宅,其中一栋为大连机车车辆有限公司的离退休老干部办公及活动场所。该建筑位于今兴工北七街19号,四十七中学南侧,坐北朝南,所处的地势最高,为砖木式建筑风格,曾是日本殖民时期大连满铁沙河口铁道工场历任厂长的住所。
1911年,随着“满铁沙河口铁道工场”(今大连机车厂)建设完毕,西安路的历史上也第一次出现了成规模的商品流通和货币贸易,该地区商业的发展自此开始。关于这段史实,《铁道部大连机车车辆工厂志》有详细的记载:“至1911年7月5日,原工厂职工全部搬入新住宅,共754户,建筑用地29,259.3平方米。在兴建住宅同期,建成小学校、医院、邮局各1处,浴池3处,俱乐部(木造)1处,贷借店铺12个,柔剑体育馆1处,并建筑了神社、大师教会、教堂等。住宅区四周店铺逐渐增多,田久字店铺(系由日本人经营)达750户,同工厂住宅区形成一个工业市街,这成为大连西部市街发展的主要因素。”
(满铁沙河口铁道工场社宅)
(大连沙河口区兴工北七街上保留的6栋日式建筑,其中第一幅图中的建筑位于兴工北七街19号,曾是日本殖民时期大连满铁沙河口铁道工场历任厂长的住所。)
大连谭家屯,位于今大连人民广场附近。上世纪初时属于城市的郊区,是一片荒坡的贫困村落。日本人占领大连后在此大兴土木,兴建广场、街道、社宅、医院、政府机关、学校、体育场等等,渐渐形成了规模。沧海桑田、历史变迁,如今这里已经成为了这个城市的中心地带。
(日殖时期的大连谭家屯,图中建筑明显带有宗教特点。)
大连傅家庄,早期又称兴海屯,解放前这里是个荒僻的渔村,二十几户渔民以种地打渔为生。由于村前的海湾是个天然浴场,每到暑期许多人来此进行避暑和海水浴。1924年5月,为了方便游人往来,日本当局在傅家庄李家屯之间开通了轻便的马车铁道。
解放以后,市政府将这里开辟为大连市四大海水浴场之一。附近又建成了大连市主要疗养区。相继修建了十余家海滨疗养区。1980年又在海滨地区建起了傅家庄公园。后来成为大连海滨风景区的一部分。
(大连傅家庄海水浴场旧影)
大连柳树屯稻荷神社,建于1919年6月4日,地点在大连湾王家屯(今沙河口区红旗镇)267番地。原建筑已拆。
(大连柳树屯稻荷神社)
大连飞行场,又称周水子飞行场,位于今甘井子区迎客路100号。始建于1924年5月,1927年7月建成。由日本航空输送株式会社经营大连至朝鲜新义州、平壤、蔚山和日本福冈、大阪、东京的航空邮件和客货运输。1937年,又先后开辟了大连经奉天(沈阳)、新京(长春)、哈尔滨至齐齐哈尔,大连至天津、北平(北京),及大连至佳木斯等航线。
(大连飞行场正门及塔台)
(大连飞行场的机库和客机)
(网络图片,大连机场新影。)
1945年8月22日,苏军亚玛诺夫将军率空降兵进驻机场,机场由苏军接管。1955年5月,机场正式移交中国人民解放军。1972年10月,周水子机场变为军民合用。现已成为国家一级民用国际机场,是国内主要干线机场和国际定期航班机场之一。
注:本文介绍内容摘选自360个人图书馆-《周水子机场前身是个跑马场(12.8.21)》。
大连玛利诺教会学院,原址位于榊町65番地(今中山区望海街与高山巷中间,山林街东侧60米处)。日殖时期建筑,砖木结构,地上二层,地下一层。产权已属私人,2013年左右拆除新建。
1923年,大连还是日本租借地时,教会活动主要是由在南满洲铁道株式会社工作的天主教信徒发起的,在信徒冈大路等人的努力下,筹集2万元,于1926年建立了玛利诺外方传教会(本部坐落于美国纽约州,在东京设有分部)。
(上个世纪30年代,大连玛利诺教会学院建筑南侧和北侧旧影。)
(大连玛利诺教会学院旧址,拆除前建筑南面和北面的影像,图片由网友周科大侠提供,感谢!)
(2013年10月12日,大连玛利诺教会学院原址上新建的建筑。)
大连张宗昌住宅,旧址位于今沙河口区黑石礁东村157号。建于1925年前后,建筑面积1026平方米,曾经是奉系军阀张宗昌的别墅。1930年12月以后,国民党军阀阎锡山也曾在此居住七八个月之久。建国后,这里是旅大市公安局招待所。现为大连市公安局培训中心,大连第一批重点保护建筑物。
(大连黑石礁张宗昌住宅的正面和侧面)
(大连黑石礁张宗昌住宅旧址)
大连河本大作住宅,旧址位于今中山区枫林街56号南山宾馆内。河本大作(1883.1.24-1955.8.25),日本关东军高级参谋,曾是策划皇姑屯事件的首犯。1935年河本大作在关东军的支持下,兼任“满炭”理事长,他任用私人亲属承包了“满炭”全部职工住宅修建工程,施工中偷工减料、中饱私囊。为了感谢河本的“关照”,1938年他们出巨资在大连为河本修建了这栋住宅。该建筑为砖木结构,占地500平方米,建筑面积600平方米,外墙面由不同花色的石砖装饰,开阔的门厅上由几根枕木作为装饰,与大理石相配显得大气又不奢华。
(大连河本大作住宅)
(大连河本大作住宅旧址,图片由大连网友“风舞九天”提供!!)
1945年8月,河本大作的妻儿离开大连后,这栋别墅便作为敌伪财产,被政府征收。解放后与周边的其他建筑一起苏联专家招待所的一员。1956年,苏联专家撤走,河本大作旧居和其他小楼一样,再次更换了门面成为了南山招待所。从上世纪70年代末至今,河本大作旧居一直作为南山宾馆的一员,每天经历着迎来送往的生活。据说,上世纪90年代初,日本国驻沈阳总领事馆常驻大连办事处还曾经在此办公。再之后,此宅便一直作为高档餐馆至今。
大连枫町82号公寓,旧址位于今中山区枫林街42号。建于日殖时期,砖混结构,地上三层,半地下一层。解放后一直是旅大警备区校官家属楼。现建筑正面结构有所改动。
(大连枫町82号公寓旧影)
(大连枫町82号公寓旧址)
大连加茂川町21号住宅,旧址位于今中山区七七街3-7号,七七街与独立街交汇处东南角。建于日殖时期,砖混结构,地上四层,半地下一层。现除正面右侧局部窗改门外,整体保存较好。
(大连加茂川町21号住宅旧影)
(大连加茂川町21号住宅旧址)
大连初音町142号公寓,原址位于今中山区青云街一带,临近解放路。现此处周边一带建筑已经全部拆除,进行旧区改造。
(大连初音町142号公寓旧影)
大连早苗町24番地公寓,原址位于今西岗区东北路以西、建业街路北。建于日殖时期,砖混结构,地上三层,半地下一层。原所在位置周边建筑均已拆除,现为公园绿地。
(大连早苗町24番地公寓旧影)
大连连锁街B区公寓,旧址位于今中山区胜利广场、进步街、荣盛街、兴隆街四条街道相围区域内。建于日殖时期,砖混结构,地上三层(局部四层),半地下一层。现建筑保存完好。
(大连连锁街B区公寓旧影)
(大连原连锁街B区鸟瞰图,图中右侧凹型中间包围的建筑即为早期的公寓。此图片为截图,原图由网友“gundamzaku”拍摄于2014年8月,感谢!!)
大连若莱町11-2公寓,原址位于今西岗区正仁街与中山路交会处东南50米处路北位置。建于日殖时期,砖混结构,地上三层。原所在位置周边建筑及街道均已拆除,现为公园绿地。
(大连若莱町11-2公寓旧影)
大连雾岛町138号公寓,原址位于今中山区白兰街46-48号附近位置。建于日殖时期,砖混结构,地上三层,地下一层。拆除时间不详。
(大连雾岛町138号公寓旧影)
大连对马町68号公寓,原址位于今中山区昆明街西侧80米华昌街路北。建于日殖时期,砖混结构,地上四层。拆除时间不详。
(大连对马町68号公寓旧影)
大连花园町10番地公寓,原址位于今西岗区高尔基路附近。始建于1935年3月,同年7月竣工。砖混结构,地上三层,建筑面积124.4坪,近世复兴式样式。由日本人根立木正男负责设计并施工。共花费15000日元。拆除时间不详。
(大连花园町10番地公寓)
大连伏见町76、77号公寓,原址位于今西岗区日新街和英华街中间的中山路一带,具体未知不详。建于日殖时期,砖混结构,地上三层。拆除时间不详。
(大连伏见町76、77号公寓旧影)
大连不老街235-2号公寓,原址位于今西岗区不老街与中山路交汇处万达购物中心位置。建于日殖时期,砖混结构,地上三层。拆除时间不详。
(大连不老街235-2号公寓旧影)
大连不老街长寿阁,原址位于今西岗区不老街,具体位置不详。建于日殖时期,砖混结构,地上三层,设计者为網谷建築事務所。拆除时间不详。
(大连不老街长寿阁旧影)
大连富久町222-2号公寓,原址位于今西岗区大同街与民政街交汇处西侧60米处位置。建于日殖时期,砖混结构,地上三层。拆除时间不详。
(大连富久町222-2号公寓旧影)
大连萨摩町公寓,原址位于今中山区杏林街,具体位置不详。建于日殖时期,砖混结构,地上三层。拆除时间不详。
(大连萨摩町公寓旧影)
大连白莲荘公寓
(大连白莲荘公寓旧影)
大连黑礁石公寓
(大连黑礁石公寓旧影)
大连平和台公寓,原址位于今中山区景山街一带,具体位置不详。建于日殖时期,砖混结构,地上三层,地下一层。拆除时间不详。
(大连平和台公寓旧影)
大连尾上町154号公寓,原址位于今西岗区长春路与中山路交汇处西百盛购物中心位置。建于日殖时期,砖混结构,地上三层。拆除时间不详。
(大连尾上町154号公寓旧影)
大连圣德街西村公寓
(大连圣德街西村公寓旧影)
大连早苗町富士见寮,原址位于今西岗区东北路附近,具体位置不详。建于日殖时期,砖混结构,地上三层,半地下一层。拆除时间不详。
(大连早苗町富士见寮旧影)
大连早苗町富士见寮,原址位于今西岗区东北路附近,具体位置不详。建于日殖时期,砖混结构,地上三层,半地下一层。拆除时间不详。
(大连早苗町富士见寮旧影)
大连圣德街柏原公寓
(大连圣德街柏原公寓旧影)
大连圣德街名越公寓
(大连圣德街名越公寓旧影)
大连圣德街清水公寓
(大连圣德街清水公寓旧影)
大连圣德街杉山公寓
(大连圣德街杉山公寓旧影)
大连黄金町若本第一公寓
(大连黄金町若本第一公寓旧影)
大连下萩町印牧公寓
(大连下萩町印牧公寓旧影)
大连永安街第二若本公寓
(大连永安街第二若本公寓旧影)
大连元町大正公寓
(大连元町大正公寓旧影)
大连古泽丈作宅邸,古泽丈作,日本商人,上个世纪日本殖民期间在大连曾任日清制油(株)、满洲油漆(株)、满洲耐火(株)负责人。其个人住宅由ハタ工务店设计,欧式建筑风格,具体位置不详。
(大连古泽丈作宅邸)
大连田中节氏宅邸,原址位于黑礁屯(今黑石礁)662番地。建于日殖时期,砖混结构,外墙采用石材砌筑,地上二层,另有阁楼,半地下一层。拆除时间不详。
大连岛氏宅邸,原址位于长春台128番地(今西岗区长春街与优秀巷交汇处西北侧位置)。建于日殖时期,砖木结构,地上二层,地下一层。拆除时间不详。
(大连岛氏宅邸)
大连川井氏宅邸,原址位于柳町25番地(今中山区南山路与五五路交汇处西南角)。建于日殖时期,砖木结构,地上二层,地下一层。拆除时间不详。
(大连川井氏宅邸旧影)
大连山下氏宅邸,原址位于樱町102番地(今中山区南山路与七七路交汇处东北角)。建于日殖时期,砖木结构,地上二层,地下一层。拆除时间不详。
(大连山下氏宅邸旧影)
大连榊町33番地住宅,旧址位于今中山区高阳巷与南山街交汇处西侧。建于日殖时期,砖混结构,地上三层,中间局部四层。
(大连榊町33番地住宅旧影)
(大连榊町33番地住宅旧址)
大连榊町46番地住宅,旧址位于今中山区高阳巷与南山街交汇处西侧80米路北。建于日殖时期,砖木结构,地上二层,地下一层。
(大连榊町46番地住宅旧影)
(大连榊町46番地住宅旧址)
大连榊町41番地和85番地住宅,两栋建筑的旧址位于今中山区高山巷与南山街交汇处西侧50米左右路南北两侧。均建于日殖时期,砖混结构,地上二层,楼顶有阁楼,地下一层。
(大连榊町41番地(图中前)和85番地(图中后)住宅旧影)
(大连榊町41番地住宅旧址)
(大连榊町85番地住宅旧址)
大连榊町4番地住宅,旧址位于今中山区南山街与高阳街交汇处东侧。原有两栋,建于日殖时期,砖木结构,地上二层。现只剩一栋,局部有改动。
(大连榊町4番地住宅旧影)
(大连榊町4番地住宅旧址)
大连榊町2番地和4番地内的住宅,旧址位于今中山区南山街与望海街交汇处东侧95米左右路北胡同内东西两侧。原有十多栋,建于日殖时期,砖木结构,地上二层,现只剩两栋。
(大连榊町2番地(图中胡同右)和4番地(图中胡同左)内的住宅旧影)
(大连榊町2番地和4番地内剩下的两栋住宅旧址)
德国驻大连领事馆,1926年3月开始设立,至第二次世界大战爆发后撤离,馆址先后有三处,至今有两处仍保存完好。
第一处馆址位于今黑石礁红星村49号西村街与西长街交汇处东侧院内,始建于1900年,为意大利盐商所建私宅。欧式建筑,砖混结构,地上二层。1926年3月-1928年7月曾作为德国领事馆。日本投降后为苏联红军办事处,1955年苏军撤离,由部队接管使用。2005年7月按原面积原貌动工翻建该楼,建筑面积870平方米,于2006年5月投入使用。
(网络图片:位于今黑石礁红星村49号的德国驻大连第一处领事馆旧址。)
第二处馆址位于今中山区枫林街30号(日殖时期为枫町110番地),建筑面积约600平方米,建于1925年前后。欧式建筑,砖混结构,地上二层。1928年8月-1930年前后曾作为德国领事馆。后因该楼建筑面积小,不足领事馆办公用,改为领事官邸。现为大连市文博艺术馆。
(日殖时期的枫町110番地德国驻大连第二处领事馆旧影)
(网友大连老吉普拍摄的图片,位于今中山区枫林街30号的德国驻大连第二处领事馆旧址。)
第三处馆址位于今中山区南山路191号(日殖时期为柳町75番地),欧式建筑,砖混结构,地上四层。1930年前后曾作为德国领事馆,1939年第二次世界大战爆发后关闭。原馆舍现已拆除新建。
(位于今中山区南山路191号的德国驻大连第三处领事馆原址)
大连八寻宅邸,原址位于春日町46番地(今中山区老鳖湾东侧解放路275号附近)。建于日殖时期,砖混结构,地上四层。拆除时间不详。
(大连八寻宅邸旧影)
大连瓜谷氏别邸
(大连瓜谷氏别邸旧影)
大连羽根九三郎氏宅邸,原址位于晴明台72番地(今西岗区结合巷与河沿巷交汇处东北角地块)。建于日殖时期,砖木结构。拆除时间不详。
(大连羽根九三郎氏宅邸旧影)
大连柳町82、86、90番地住宅,三栋建筑旧址位于今中山区安阳街与七七街交汇处西侧路北。建于日殖时期,欧式风格,砖木结构,现保存完好。
(大连柳町82、86、90番地住宅旧影,图中间自右向左。)
(大连柳町82番地住宅旧址)
(大连柳町86(右)、90(左)番地住宅旧址)
大连小野木氏邸
(大连小野木氏邸旧影)
大连太田雅夫氏邸
(大连太田雅夫氏邸旧影)
大连下村氏邸
(大连下村氏邸旧影)
大连关东州厅长官官邸,旧址位于今沙河口区星海二街1号。1936年建成,砖混结构,地上二层,地下一层,建筑面积1200平方米,和风欧式花园洋楼。1937年5月,关东州厅自旅顺关东州厅旧厅舍迁至长者广场,这里是关东州厅长官的官邸。最后一任长官是今吉敏雄。
1945年8月15日,日本宣布无条件投降。9月22日,苏军驻大连警备司令官高兹洛夫命令今吉敏雄及所有部下从关东州厅长官官邸和州厅部长级官舍中全部迁出。9月23日下午,今吉敏雄在关东州厅舍内遭到苏军逮捕,被关押在原大连日本宪兵队本部。该建筑2003年公布为大连市文物保护单位,2013年拆除。
(大连关东州厅长官官邸旧影)
大连石田邸,原址位于高砂町32番地(今黑石礁西连街与西江街交汇处南侧)。建于日殖时期,砖木结构。现已拆除。
(大连石田邸旧影)
大连相生由太郎宅邸,旧址位于播磨町140番地(今延安路与平阳街交汇处西北角)。建于日殖时期,欧式风格,砖混结构,地上二层。现保存完好。
相生由太郎(1867-1930):号铁牛居士,日本福岗人。1906年应满铁之聘来大连,1907年任满铁大连码头事务所所长,1909年受满铁总裁委托,辞去满铁职务,创立福昌公司,专营码头劳工事务。1912年在寺儿沟建碧山庄华工收容所,俗称“红房子”,同时向土建、建材及房地产等方面扩张,兼任满洲水产、满洲兴业、大连工业、满蒙工业、大连取引信托、大连机械制作所等会社董事。1916年至1925年间任大连商工会议所所长,大连市议员。1926年因病将码头业务与碧山庄华工收容所移交满铁管理,1929年将福昌公司改名为华工株式会社,1930年病死于大连。
(大连相生由太郎宅邸旧影)
(大连相生由太郎宅邸旧址)
大连清水町59番地住宅
(大连清水町59番地住宅旧影)
大连佐藤氏邸
(大连佐藤氏邸旧影)
大连中谷氏宅邸,原址位于若莱町143番地(今西岗区正仁街与胜利路交汇处北角)。建于日殖时期,砖木结构,地上二层。2010年末拆除。
(大连中谷氏宅邸旧影)
大连H氏住宅
(大连H氏住宅旧影)
大连U氏住宅
(大连U氏住宅旧影)
大连远藤繁清宅邸,旧址位于高砂町235番地(今黑石礁西村街与西连街交汇处南侧50号楼所在址)。远藤繁清,当时著名的医学博士,也是南满洲保养院的创始人和院长(后来的小平岛疗养院)。这个建筑是根据俄国人的愿望,由德国人设计的。日俄战争前已经建起了大部分,后来由满铁的铃木建筑师做了几分修改后建成。现保存完好。
(图片来自新浪好友“清流一叶”的博客,大连远藤繁清宅邸旧影。)
(图片来自网易网友“1647141一叶孤舟”的博客,大连远藤繁清宅邸旧址。)


