尘嚣上
云霭间
它是云端上的⼀粒尘埃,
⾃知轻微仍要奋⻜九天;
它是尘世中的⼀抹云彩,
深陷囫囵依旧轻柔⼈间。
内外共生
Internal andExternal Symbiosi
-
位于杭州的「天目里」是一座知名的艺术发生器,由伦佐·皮亚诺打造。这个项目融合了艺术中心、秀场、生活方式等多重维度的探索体验,代表了杭州时尚的高度和精准的先锋态度。
⼀横⼀竖选择这⾥作为厦⻔之外的第⼆基点,这种跨越千⾥与⽂化脉络的拥抱,在此刻发⽣。
P. 02
P. 03
经典的玻璃幕墙将空间与自然融合,记录并聚焦人与社交、事件与活动的自然发生。这一切都被浓缩在100平方米的空间中,通过光影、生活和韵律最真实的内在表达得以展现。
P. 04
P. 05
活动墙体的旋转巧妙地将事务所的滚动标识与空间门户的开启相融合。正反两面的不同疏密处理,实现了功能的「收」与「放」之间的平衡,在门扉旋转的过程中,空间静谧的故事得以展开。
为了保持空间轻松随性的氛围,进入空间需要在门口换上拖鞋。因此,在门前的可变区域使用柔软的毛毡创造探索的氛围,并贴心地放置一把椅子,以满足换鞋的需求。
P. 06
江南的灵秀藏匿在西湖的群山之中,而钢筋混凝土森林需要与自然更轻快灵巧地互动。设计不仅考虑自然环境,还考虑生活场景的自然发展。
通过在步道旁引入人工景观,设计试图加强建筑与自然景观的通透性,从而在空间体验和精神共鸣的双重维度上建立人与空间的连接模式。
P. 08
P. 09
木质步道的抬升赋予了进入空间的充分仪式感,而左侧的两扇格栅门被设计成灵活可反转的模式。
内侧的人员可以根据对光线的需求和场景变化调节与天目里园区的连接。当夕阳倾洒进室内时,温暖密实的木质步道延伸到生活的每个角落。
和光同尘
Dust with the Light
-
建筑的原始轮廓固定了空间的形态,但不同的分隔形式赋予了空间不同时间段的多重可能性。通过功能切片的重叠,将小空间制造成大空间,消除了有限空间的使用限制。
设计围绕工作中的自主权和灵活性展开平面布局,将多种场景办公模式相融合,模糊了办公、讨论和休闲之间的边界,以动态流动的方式释放了空间的潜力。
P. 13
为了回应伦佐·皮亚诺为天目里打造的生动表皮,选择了清水混凝土的原始肌理,来构建开放而沉静的空间,这种选择旨在捕捉瞬息愉悦。
在室内造境和家具颜色方面,通过轻松的笔触注入自然乐趣,与空间使用者的情绪共振,营造出满室的呼吸感。
P. 14
P. 15
P. 16
P. 17
室内构件的灵活运用贯穿空间的各个角落。采用预制构建并现场组装的方法,极大地降低了建造过程中的损耗和污染,提高了建造效率。
绿植让空间更贴近自然,阳光轻盈地洒落,地面上留下点点斑驳的光影。在忙碌的工作中稍作停歇,或是喝茶、聊天、阅读,回归到工作的初心——为了更美好的生活。
P. 21
P. 22
云淡风轻
Dust with the Light
-
基于闽地待客之道,张玮将茶的体验贯穿空间的各个角落,营造出不同场景的串联。在空间体系的延伸逻辑下,设计结合自有原创品牌「Alittle」的研发逻辑,通过对茶饮流程和细节的熟稔,创作了一系列家具与构件的延伸思考。
P. 23
以中国传统文人居士对于风雅集会的内在诉求,选择将私密安静的会客场景,浓缩在原创金属茶亭的场域体验中。
运用现代装配式建筑思维,将模块化构件通过工厂预制和现场组装的流程化管理,快速植入施工现场,以确保在不同场地条件下,美学与功能性的统一能够在效率和准确性之中得以实现。
P. 25
P. 26
茶亭地面采用了民间回收的老木板拼贴而成,这些迥异的斑驳痕迹诉说着它们各自经历的悠悠岁月。
在产品化的模块化和批量生产过程中,既保留了天然材料与自然的联系,又在现代与传统、自然与人工之间建立了独特的链接方式。这是对手工艺和材质的敬畏,致敬于时间的打磨与历练。
P. 27
P. 28
P. 29
通过私密空间与开放区域的结合,将建筑的清水混凝土结构置入,金属亭仿佛从建筑中生长出来,在极具闽地特色的石材包裹下,独坐夜观,焚香自叙,静思密谈,巴山夜雨。
P. 30
心造万方
P. 31
P. 32
P. 33
P. 34
以方正平直的“云蓝”茶桌统领气场,对应了一横一竖设计的中正平和的美学根源,在铜斑驳的肌理中,烧茶煮水的功能性被巧妙隐藏在微陷的角落。
两抹优雅的弧度为这种中正提供了绝妙的支撑,在“藏”与“现”的韵律交互中,故事娓娓道来。
P. 35
P. 36
P. 37
P. 38
而茶椅形体则摆脱传统家具形制的束缚,在金属立方体的方圆韵律中寻找切口,通过金声玉振的孔雀绿与深邃墨色,结合结构的抽象。
在舒适性和现代性的摆动中,以全新的提取方式诠释当代茶饮体验的新需求:在传统基底色上,个性与时尚的形神兼备。
P. 39
P. 40
卡路赛利椅的摇曳舒缓,在抬高的内嵌空间中昭示着主人的平和内敛,当帷幕落下,这里便是私密静谧的休憩与内观领地。
眼耳鼻舌身意,色声香味触法,在与自我的对话中,归档昨日,梳理当下,静思未来。
P. 41
P. 42
P. 43
P. 44
P. 45
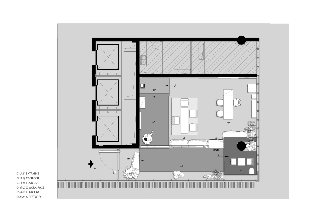
ANALYSIS DIAGRAM
INFO
- 项目名称 -
尘 雲
- 设计机构 -
WWD.一横一竖设计
- 主案设计 -
张 玮
- 项目面积 -
100㎡
- 项目地址 -
浙江 杭州
- 项目摄影 -
林世凯
- 主要材料 -
不锈钢 岩石
橡木 艺术徐料
- 家具陈设 -
ALiTLE arper
vitra Wuu AVARTE
上相 感物
- 施工单位 -
杭州芝麻装饰工程有限公司
DESIGNER
张 玮
WWD一横一竖设计创始人
[锅炉咖啡] [ALiTLE] 品牌创始人
-
WWD一横一竖设计创始人张玮, 致力于空间设计与多元美学的融合创作,擅长将空间结构特点与功能性完美结合,带着对美的辨思,不断探索空间与使用者的感知边界。
一横一竖设计WARP WEFT DESIGN (WWD)是一家只专注纯设计的空间设计公司。往大的说“一横”分了天地,有了虚实、轻重;“一竖”分阴阳,有了明暗、是非;于是就有了这个大千世界,而中间小小的交错点就是我们的定位。往小的说,“横”“竖”是空间里的最基本构成的。所以一横一竖是一家有着宏达世界观,并能专注于细节的优秀设计公司。公司主营小型建筑设计、室内设计、产品设计。
-
MAGNUM OPUS
REVIEW
LJID首发|一野设计 • 几何秩序与内核
LJID|登胜设计 • 超验之形
LJID首发|深圳共向设计 • 浅心素居
LJID首发|李怀松 • 钢琴键
LJID首发|大象未来 • 小千世界
……
FIRST RELEASE
SPECIAL ISSUE
// LJ看设计 | 设计杭州特辑 //
// LJ看设计 | 设计广州特辑 //
// LJ看设计 | 设计南京特辑 //
// LJ看设计 | 设计佛山特辑 //
// LJ看设计 | 设计深圳特辑 //
……
- END -
L J 看 设 计
- THANKS -
欢迎大家将LJ看设计设为‘星标’公众号
以便第一时间接收内容推送


