火山岩和旋转玻璃门,营造一种粗旷通透的气氛。
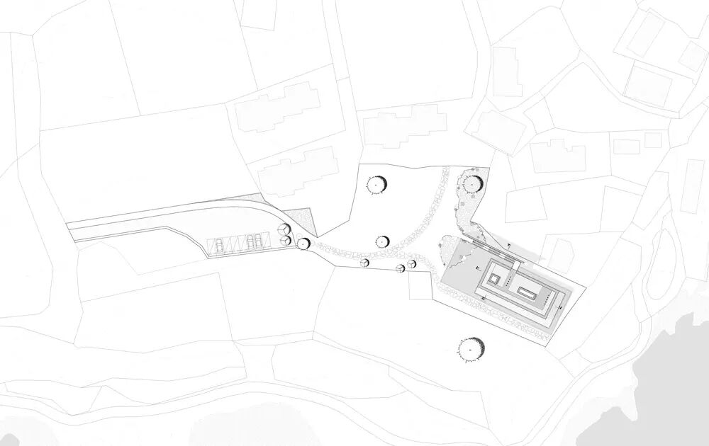
韩国济州岛这几年都是中国游客常去之地,也因为旅游业的发展,出现了不少特别的旅舍或商店。如果你在去年 10 月份之后去过济州岛,没准就能碰上韩国艺人权志龙(G-Dragon)新开的咖啡馆 Monsant Cafe。它在济州海岸风景最好的地段涯月(Aewol)。
Daum Space by Mass Studies
Jeju Ball by Kengo Kuma
holiday cottages by Moon Hoon
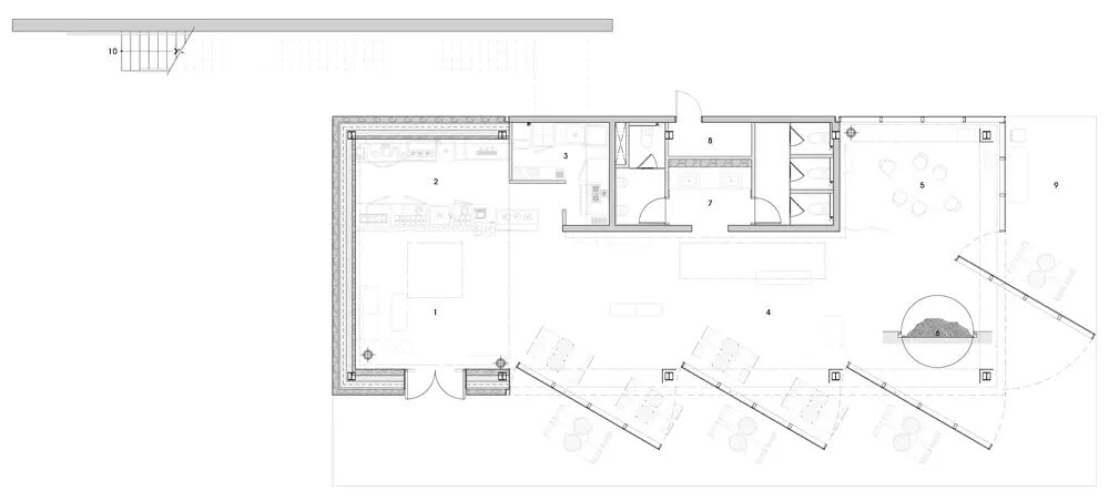
咖啡馆的主体可以看做一个长方形的盒子,有 200 平方米,外立面使用了火山岩和玻璃窗两种材料。火山岩在东部和北边的方向,对应着室内是柜台和厨房,玻璃窗一侧则是靠近海岸线的南和西侧,有更好的风景。玻璃窗是用黑色不锈钢做结构,每四扇构成一面可绕中轴旋转的门,可以将两侧的玻璃门旋转一定角度,让室内外非常通透。
韩国设计工作室 Platform_a 修建了这所咖啡馆,他们希望建筑可以与周围环境联系起来,强调已存在的环境。
更有意境的是建筑背后的一面“断墙”,它有一个像窗户一样的方形的口,有点摇摇欲坠的感觉。沿着墙面用金属铺成了一条楼梯,恰好通向了建筑的二楼,是一个可以更好看风景的平台。
图片:dezeen、hypebeast,文字:好奇心日报,
仅供学习参考,版权归原作者所有。


